Kita Konrad-Celtis-Straße
Konrad-Celtis-Straße, München, Alemanha
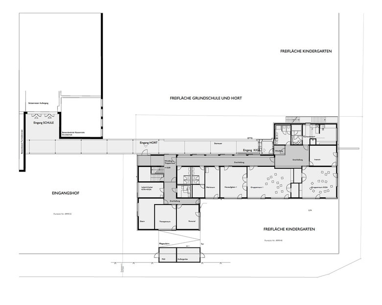
Ein zweigeschossiger, im Grundriss s-förmiger Neubau ordnet die gegenüber den alten Pavillonbauten deutlich größere Baumasse wie selbstverständlich in das Schulensemble der 60er Jahre ein. Eingangshof, Schulhof und neue Freifläche für die Kindergartengruppe werden deutlich gegliedert, ohne deren Zusammenhang zu zerstören. Der Verbindungsgang zwischen Hort und Schule, trennt den Eingangshof vom Schulhof und mündet in den geschützten Eingangsbereich der Kita.
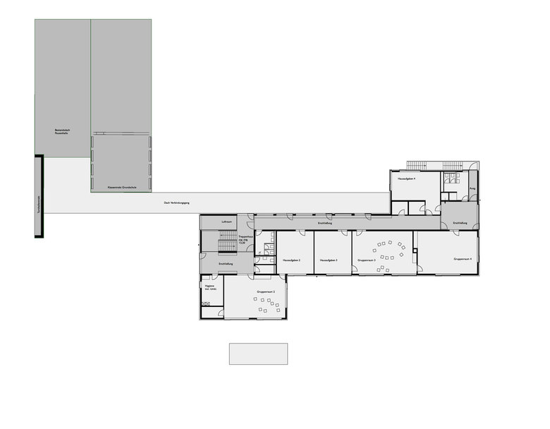
Im Inneren sind Kindergarten und Hort voneinander getrennt mit der Möglichkeit der gemeinsamen Nutzung des Mehrzweckraumes. Der Kindergarten liegt im Erdgeschoss mit der Orientierung der Aufenthaltsräume zum südlichen Spielbereich. Der Eingangsbereich des Hortes sowie Leitung, Therapie-, Werk- und Elternbereich nehmen die westliche Hälfte des Erdgeschosses, mit Außenbezug zum Eingangshof, ein. Das Obergeschoss beherbergt die Hortgruppen und erhält durch den Flur zusätzliche Aufenthalts- und Spielflächen.
Besondere Gestaltungselemente der Kita sind u.a. die Fenster, die in ihrer Anordnung die Fassade beleben gegenüber der sonst rationalen Fassadengestaltung der umgebenden Gebäude. Die großen Öffnungen ermöglichen einen intensiven Innen-Außenbezug, sind gestaltprägend für die Fassade durch ihre Farbigkeit und gleichzeitig Sitzmöglichkeit im Inneren. Der sowohl aussen wie auch innen zurückhaltende Materialkanon bildet eine ruhige Atmosphäre für die vielfältigen Aktivitäten der Kinder.
Planungszeit
2000-2009
Bauherr
Landeshauptstadt München, Baureferat H3
Planung
MORPHO-LOGIC
Michael Gebhard, Prof. Ingrid Burgstaller, M.Sc. Dipl.Ing. Architekten BDA Stadtplaner, Partnerschaftsgesellschaft
Mitarbeit: Christoph Pütz, Thomas Bönsch, Günther Bodenburg
Auszeichnung
2008 Architektouren
Veröffentlichung
Kindertagesstätte Konrad-Celtis-Straße, Landeshauptstadt München, Baureferat, 2010
- Arquitectos
- MORPHO-LOGIC Architekten BDA Stadtplaner
- Ano
- 2009
- Status do projeto
- Built














