Lighthouse
Eglistrasse 1, Zürich, Suíça
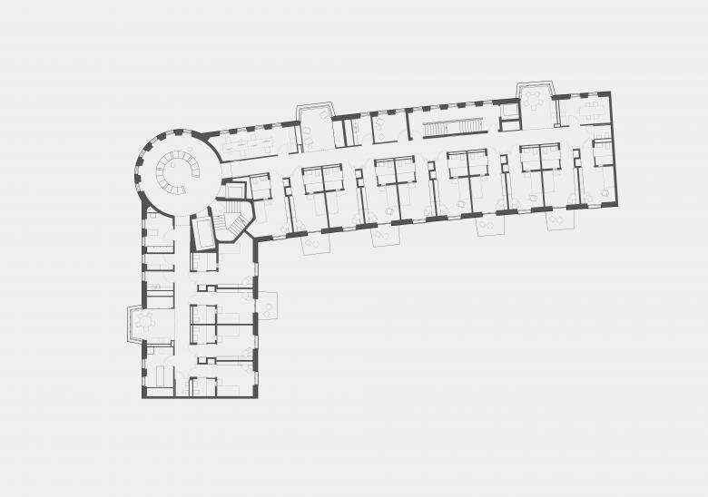
Das Pflegeheim mit dem Palliativzentrum Lighthouse ist Teil der Wohnsiedlung Egligasse. Genauso wie die ganze Siedlung zurückhaltend ins Stadtgefüge eingepasst wurde, ist das Lighthouse in die Hofrandbebauung integriert. Mit der Rotunde, als emblematischem Zeichen an der Hohlstrasse, erhält es den angemessenen öffentlichen Auftritt.
Im Palliativzentrum Lighthouse wohnen Menschen mit einer lebensbegrenzenden Diagnose. Schmerzlinderung und eine ganzheitliche Betreuung erlauben eine möglichst autonome und würdevolle letzte Lebensphase.
Wenn das Sterben als Teil des Lebens verstanden wird, ist ein vielfältiges, wohnlich gestaltetes Raumangebot das Resultat. Die Bewohnerbedürfnisse sind unterschiedlich. Gemeinsam ist das oft stärker werdende Bedürfnis nach Rückzugsmöglichkeit und ein eingeschränkter Bewegungsradius. Dazu wurden zahlreiche grössere und kleinere Aufenthaltsmöglichkeiten auf den Zimmeretagen und im ganzen Haus geschaffen. Auch sind spezielle Orte zu finden, die dem inneren Rückzug dienen, wie zum Beispiel der Raum der Stille und der konfessionsneutrale Andachtsraum. Eine vor Einblicken geschützte Dachterrasse ermöglicht es den BewohnerInnen, noch einmal unter freiem Himmel liegen zu können.
Die Anordnung der Nebenräume entlang der lärmigen Hohlstrasse lassen das Ausrichten der 42 Bewohnerzimmer zum ruhigen und mit Hochstammbäumen bepflanzten Hof zu. Die Gliederung der 14 Zimmer umfassenden Geschosse in Gruppen von maximal fünf Zimmern ermöglicht ein familiäres Wohnen.
Das Material- und Farbkonzept entspricht den übrigen Wohnungen in der angrenzenden Siedlung. Die verwendeten Materialien sind dauerhaft und nicht zusätzlich veredelt, damit deren Eigenheiten möglichst spürbar bleiben. Im Zusammenspiel mit den kräftigen Farben, welche aus dem Naturstein abgeleitet sind, tragen die rohen, durchaus unperfekten Oberflächen, bis hin zu den speziell produzierten Tischen und Nachttischen aus Baubuchenplatten, zum wohnlichen Charakter bei.
ken-architekten.ch
- Arquitectos
- Ken Architekten
- Ano
- 2023
- Status do projeto
- Built
- Cliente
- Dr. Stephan à Porta-Stiftung
- Landschaftsarchitektur
- Studio Vulkan, Zürich
- Bauingenieur
- Schnetzer Puskas Ingenieure AG, Zürich







