Mehrgenerationen Häuser in Gechingen mit betreutem Wohnen und Tagespflege
Furt, Gechingen, Alemanha
Das Baugebiet ,,Furt‘‘ liegt am Südrand der Siedlungsstruktur der Gemeinde Ge- chingen südlich der Irmaue. Der Standort grenzt westlich an das bestehende Pflege- heim der Gemeinde Gechingen.
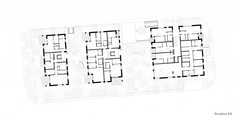
Auf dem ca. 3254 qm großen Grundstück, entlang der Talaue Straße sind zwei Mehrgenerationen Häuser mit gesamt 19 Wohneinheiten geplant und ein Haus für Betreute Senioren Wohnungen mit 20 Wohneinheiten, sowie einer Tagespflege. Unterbaut ist der Wohnkomplex mit einer Tiefgarage mit 50 Stellplätzen für die Bewohner.
Material – Die Häuser werden aus Kalksandstein errichtet und mit einer Holzfassade verkleidet. Um den natürlichen Charakter des Gebiets der Talaue weitergehend zu unter- streichen, wird das Satteldach mit einer Dachbegrünung ausgestattet.
Funktion – Bei den drei Gebäuden handelt es sich um 3-geschossige, kompakte Baukörper (zzgl. Untergeschoss), für die betreuten Seniorenwohnungen mit einem länglichen, in der Mitte liegenden Flur zur Erschließung der Wohneinheiten, der Treppen sowie des Aufzugs. Der Haupteingang des Gebäudes befindet sich im Untergeschoss und wird fußläufig über die Nordseite, von der Talaue aus, erschlossen. Der Zugang zur Garage befindet sich ebenfalls im Untergeschoss.
Das Erdgeschoss beinhaltet neben Wohnungen auch eine Tagespflege mit separatem Eingang. Die Haupteingänge der beiden Mehrgenerationenwohngebäude befindet sich im Erdgeschoss an der Ostseite und werden fußläufig über Treppen von der nörd- lichen Straße (Talaue) aus, erschlossen. Der Zugang zur Garage befindet sich im Untergeschoss. Die zwei Mehrgenerationen Wohnhäuser und das Betreute Seniorenwohnhaus werden unterschiedliche Wohnungsgrößen für alle Bevölkerungsgruppen, von 40 bis 115 qm, mit einer Zimmeranzahl von 2 bis 4 Zimmern vorgesehen. So möchte die Gemeinde für unterschiedliche Bedarfe Angebote schaffen. Alle Geschosse sind sowohl bei den drei Wohnhäusern über Aufzug barrierefrei erreichbar.
Energiestandard – Das Bauvorhaben entspricht dem energetischen Neubaustandard des seit 01.11.2020 gültigen Gebäudeenergiegesetzes GEG. Weiterhin erreicht das Ge- bäude mit Holz-Pellet Heizung den BEG WG Effizienzhaus EE Standard (Bundes- förderung für effiziente Gebäude – Wohngebäude, Effizienzhaus 55 Erneuerbare Energien).
- Arquitectos
- Architektur 6H
- Ano
- 2024
- Status do projeto
- Under Construction






