Metric

285 Lucas Avenue, Los Angeles, California, USA

Born and raised on the site of his parents’ 10 room two story motel in the Westlake Neighborhood of Downtown Los Angeles, our client and his wife left successful careers to take over the family business. Following 5 years of building the reputation of the small motel, and anticipating the real estate speculation that would alter the character of the community they love, the decision was made to raze the tired structure and build a new boutique property to expand the hotel brand and lead the re-emergence of the neighborhood from the inside.

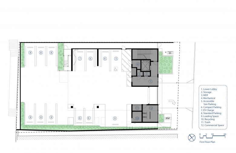
Conceived as an alternative to the corporate and luxury hotels proliferating downtown, and catering to young, foreign travelers, the hotel offers affordable comfort in a technologically current and efficient environment adjacent to transportation, business, art, sport, shopping, and adventure. With a focus on setting an example for inevitable future development, and keen to the dearth of public green spaces in the neighborhood, the hotel steps back from the street, providing a moment of pause for the residents with the introduction of a green space and a bicycle rental and repair storefront, in addition to the street level lobby.

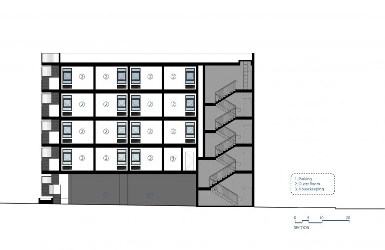
Deploying site constructed and modular building components, the resulting geometry and cladding expresses the cellular nature of the hotel’s interior spatial configuration, while sensitively engaging the existing scale of the street and the neighborhood. The front façade highlights the circulation, elevator landings, and lobby with an alternating pattern of reflective ribbed metal panels and floor to ceiling windows oriented towards distant mountain and skyscraper views. The side façade, a traced white canvas, is punctured by the guest room shadow box windows, creating a daily registration of the sun’s path. The rear façade holds a tectonically experiential egress stair, connecting the ground floor to the roof.

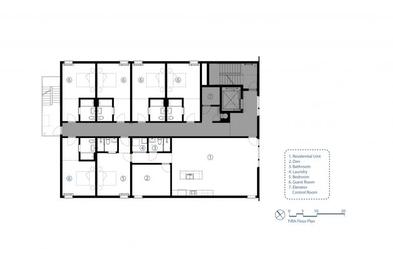
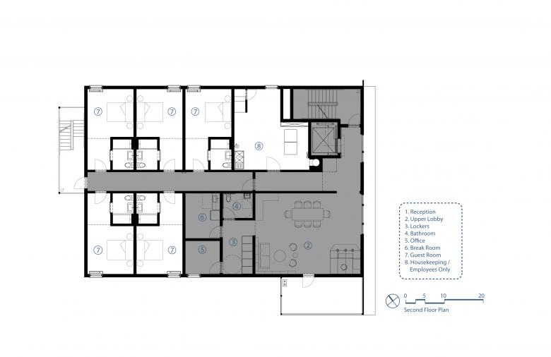
Situated behind the ground floor lobby and storefront, the street level contains parking, mechanical spaces, and storm water planters. The second floor holds the main lobby, lounge, dining area, and service rooms, as well as 6 guest rooms, the third and fourth floors hold 8 guest rooms, while the fifth floor has 6 guest rooms and the owners’ two bedroom suite on the top floor with commanding views of their neighborhood’s transformation.

Arquitectos
Aaron Neubert Architects
Ano
2021
Status do projeto
Built

Projetos relacionados 

  • Gymnasium Schulstraße
    Kronaus Mitterer Architekten
  • GROHE Water Experience Center
    D’art Design Gruppe GmbH
  • Limmatquai 4
    Kästli Storen
  • Volksschule Erlaaer Schleife
    Kronaus Mitterer Architekten
  • Ortsdurchfahrt Domat/Ems
    Luminum GmbH

Revista 

Outros projetos por Aaron Neubert Architects 

Arroyo Oak House
Castaic, USA
OZU East Kitchen
Atwater Village, Los Angeles, USA
View House
Los Angeles, USA
Canyon House
Los Angeles, USA
Busan Opera House
Busan, South Korea