Mirai House of Arches
Bhilwara, India
Designed on a small 622m² corner plot of a residential villa layout, Mirai is a contextual house in response to the hot desert climate of Rajasthan, India.
Based on the location, the southern & eastern sides have minimum open space, with adjacent villas on those sides planned for development in the future. The northern and western sides front a road junction and have more open spaces, including garden areas and existing trees.
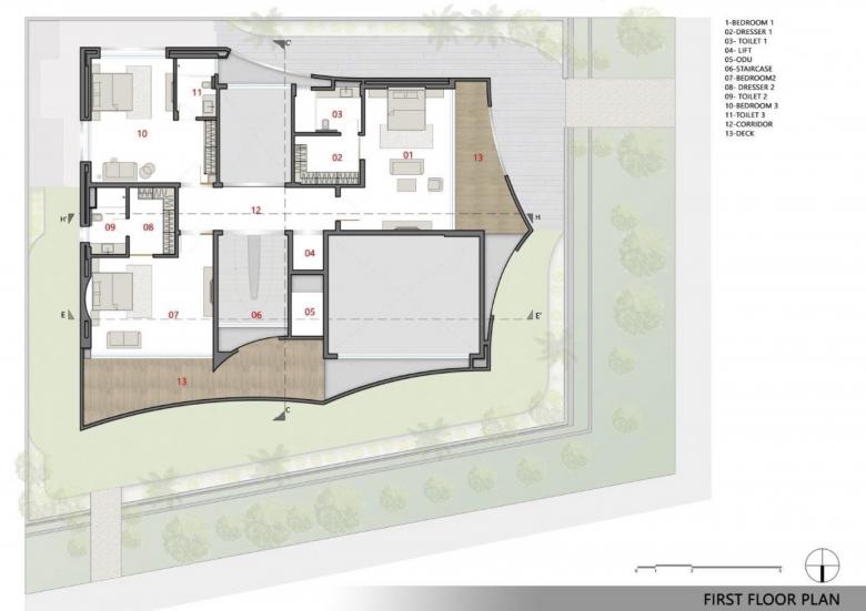
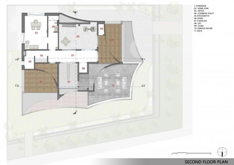
Designed for a family with 3 generations living together, the house has 3 levels, with 4 bedrooms, 2 living rooms, a gym, and a study.
Sectionally, the heights within it are varied with an interesting play of volumes in each part of the house, including bedrooms of a single volume, a dining area of a double volume, and a living area of an intermediate 1.5 level volume.
A curvilinear punctuated envelope surrounds the house, creating interstitial, semi-open spaces all along the perimeter, with deeper recesses on the garden-facing sides. This envelope reduces the heat gain substantially, while providing sheltered open spaces around the house to each room. Designed to mitigate heat gain in response to the hot avid climate of its location, this envelope keeps the entire house cool in the hot summer months, when temperatures rise in excess of 40°C for 8 months of the year.
This sculptural house is contextual to its surroundings, the climate, and the owner's needs, resulting in an interesting play of volumes, open, enclosed, and semi-enclosed spaces at every level. The design creates energy-efficient spaces with reduced heat gain and indirect natural light in each part of the house.
In collaboration with local craftsmen and contract labor from the immediate vicinity, the house was built using locally sourced bricks, sandstone, and lime plaster, and includes processes for water recycling, rainwater harvesting, and solar panels for energy generation. The house is built sustainably and is climate responsive.
- Arquitectos
- Sanjay Puri Architects
- Ano
- 2022
- Status do projeto
- Built
- Cliente
- Mr. V.P.Ranka
- Equipa
- Sanjay Puri, Nina Puri, Ishveen Bhasin, Shreiya Kumar, Nilesh Patel, Kalpesh Kacha, Tanya Puri
- Construction Company / Contractor
- Anupam Buildtech
- Interior Design Consultant
- Nina Puri Architects
- Structural Consultant
- Vijay Tech Consultants
- MEP Consultant
- Shreshtha Consultants
Projetos relacionados
Revista
-
A Construção da semana
The Three-Body Problem: Trapped in a Wave Sandwich
Eduard Kögel, Scenic Architecture Office | 13.04.2026 -
-

































