Multifunktionale Überbauung Gare des Eaux-Vives

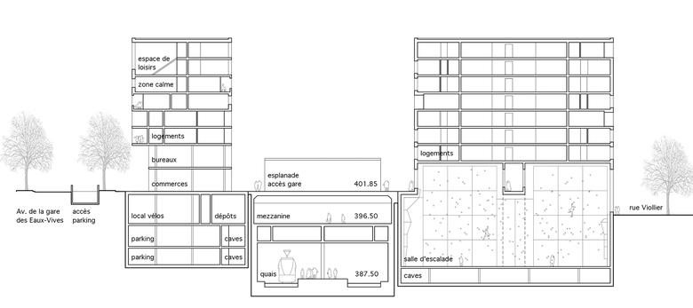
Das Quartier des Eaux-Vives erstreckt sich vom Seeufer bis zum gleichnamigen Bahnhof und zeichnet sich durch seine einheitliche, sich nach oben schrittweise öffnende Blockrandbebauung aus. Die geplante, multifunktionale Überbauung nimmt diese vorhandene Hoftypologie des Quartiers auf und interpretiert sie als kammförmiges, zur Stadt hin offenes Ensemble. Eine schlanke Wohnscheibe bildet das Rückgrat der Anlage, welche von drei Genossenschaften mit unterschiedlichen Zielgruppen (Studenten-, Familien- und Alterswohnungen) verwaltet werden soll. Zwei grosszügig angelegte Treppenhäuser fungieren als horizontale Boulevards und Treffpunkte der Generationen. Der mittlere Platz wird als Sockel ausgebildet und dient als Drehscheibe zum neuen unterirdischen S-Bahnhof. Entlang dieser gebauten Geländekante reihen sich diverse Volumen und Nutzungen (kulturelle und soziale Einrichtungen, Sport- & Kletterhalle, Hallenbad, Einkaufszentrum, Wohnungen). Die kontrastierenden Massstäbe und Proportionen der Baukörper bilden eine markante Silhouette als Stadtkrone – La Linea –und machen somit die neue, verborgene Verkehrsanlage zum städtebaulichen Referenzpunkt.

Arquitectos
GXM Architekten
Status do projeto
Design

Projetos relacionados 

  • Moos
    playze
  • Reiters Reserve Premium Suiten
    BEHF Architects
  • Erweiterung und Instandsetzung Hallenbad Altstetten
    MIYO Visualisierung
  • Neubau von fünf Einfamilienhäusern
    Bäumlin+John AG
  • The Forge in der 105 Sumner Street in London
    Kiefer Klimatechnik GmbH

Revista 

Outros projetos por GXM Architekten 

Le Ticle Zentrumsüberbauung
Delémont, Suíça
Familien- und Generationenhaus
Zürich, Suíça
Dauerausstellung MICR
Genf, Suíça
Wohnwerkstatt
Dübendorf, Suíça
Erweiterung Schulanlage
Delémont, Suíça