Myllymatka Senior Centre
Helsinki, Finland
A former hospital building has undergone a complete and demanding transformation into a Senior Centre by Helsinki city and now offers a functional, safe and activity-packed home for more than 100 seniors.
The original Myllypuro Hospital for long-term care was completed in 1970 and designed by Erkki Helamaa and Veijo Martikainen.
As a concept, the senior centre covers three service areas: 1. Assisted living that offers care and treatment for residents as well as a possibility for relatives to participate. 2. A variety of services that support seniors living at home related to eating, exercise, hobbies, day activities, rehabilitation, open meeting places, guidance and counselling as well as volunteer activities. Support is also provided by the health centre and hospital, as well as digital services. 3. A base for home carers for services provided for seniors living at home.
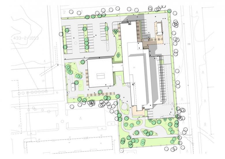
The Myllypuro Senior Centre has a total of 136 places in 11 group homes for long-term housing and short-term care, including rooms for couples. Residents of group homes have their own rooms and in the common areas, there is a kitchen, a living room, and sauna facilities. In addition to the group homes, the facility also has a service centre, a day activity unit called Sävel, an activity centre for seniors in home care, as well as a restaurant. Floors 3-7 each have two group homes with 12-13 rooms, each of these group home has its own personalised communal spaces. From the tall building there are views all the way to the city. The floors are named with musical terms: polka, rhythm, melody, samba and sonata.
Designing an adaptive reuse of the hospital into a senior centre that also serves the elderly and unemployed in the neighbourhood meant activating the ground floor. Many of the services such as the restaurant, recreational spaces and day activity facilities were moved from the second-floor downstairs to the ground floor. The services were fitted to a previously closed basement space located on the ground floor that was opened up with several connections to the previously renovated and now further improved garden. A double-height winter garden, sometimes with temporary art exhibitions, was added to the passage between the courtyard pavilion and the main building. Mobiles A & Ö by artist Jenni Rope hang in the winter garden and the pavilion stairwell, and are commissioned by HAM / Helsinki Art Museum. There is also a granite artwork in the lobby’s lounge. The interior design, as well as exterior landscape design and indoor planting were also designed by the office.
The facades, the windows, and the roof were renewed. The sand-lime brick cladding was replaced with a light-toned fired brick. Perforated enamel metal strips were installed in front of the ventilation windows. The original balconies are now glassed in and added opening with French balconies at the closed ends.
- Arquitectos
- Kirsti Sivén & Asko Takala
- Ano
- 2021
- Status do projeto
- Built
- Equipa
- Kirsti Sivén, Asko Takala, Tuula Nurmi, Outi Pitkänen, Laura Snirvi, Saku Kuittinen, Eero Alho, Saara Sillanmikko, Hanna Vikberg, Ralf Åkerblom, Matti Pärssinen, Merja Penttinen, Jukka-Veli Heikka, Eliane Leuzinger, Kendra Reid


















