Centre Nautique
Nant, Suíça
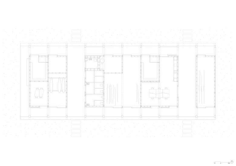
Paisiblement ancré sur son piédestal de béton, le nouveau centre nautique de Nant est une construction toute en légèreté composée de deux structures autonomes. La première, sur laquelle repose une toiture opalescente, abrite la seconde, composée de trois volumes autoportants accueillant un centre d’animation avec activités nautiques, la société de sauvetage du Vully, ainsi que les installations sanitaires publiques de la plage de Nant.
La réflexion initiale du projet se fonde principalement sur les besoins actuels des utilisateurs sus-mentionnés. Elle tente également de répondre à une nécessaire flexibilité permettant d’assurer la pérennité du projet. En d’autre termes, l’ouvrage a la capacité d’évoluer et d’accueillir de potentiels nouveaux usages.
De cette volonté découle un grand couvert structurel abritant chaque programme différencié visuellement par trois volumes autoportants. Les onzes arches, sur lesquelles repose la toiture de l’ensemble, sont consciemment détachées constructivement des locaux et contribuent à unifier l’ouvrage tout en le protégeant des aléas météorologiques. De part son empreinte au sol généreuse en résulte des coursives distribuant les différentes entité du pavillon.
La dissociation visuelle a pour effet la création de deux artères traversantes faisant office de lieux transitoires tout en multipliant les accès aux différents programmes. En outre, elles apportent également nombre de qualités d’usages. En effet, de part leur dimensions, ils font office d’espaces intermédiaires favorisant une appropriation libre de la part des utilisateurs. Ils garantissent la transparence visuelle entre le bâti et le lac, en cadrant parallèlement des vues privilégiées sur ce dernier. Dans une volonté d’homogénéité, sans toutefois restreindre la clarté de lecture des différentes fonctions, seul le jeu entre le bardage horizontal-vertical permet de différencier subtilement les portes coulissantes des parois en bois.
Tout comme la structure qui se contente de répondre efficacement aux diverses fonctions qu’elle abrite, les différents matériaux qui la composent ont été choisis de manière à répondre aux contraintes et critères imposés. L’accent a été mis sur la facilité et la rapidité de mise en œuvre, l’impact environnemental, la durabilité, le coût, ainsi que l’impact visuel dans le paysage existant. Le bois s’est donc imposé tout naturellement. L’essence, en l’occurence l’épicéa certifié Label Bois Suisse, se retrouve dans la totalité de la construction sous différentes formes. L’ossature et le bardage sont en épicéa brut, les cloison intérieures en trois-pli et les portiques réalisés en lamellé-collé. La totalité des éléments sont non traités, afin de laisser le bois vieillir et se patiner au fil du temps, se dotant ainsi d’une protection naturelle lui permettant de s’intégrer de manière discrète dans son environnement. Pour des raisons de simplicité de mise en œuvre et de rapidité d'exécution, la totalité des éléments ont été préfabriqués en atelier puis assemblés sur place.
La toiture quant à elle, grâce à ses propriétés, amplifie et diffuse de manière optimale la lumière naturelle à l’intérieur des locaux et réduit conséquemment l’utilisation de lumière artificielle durant la journée.
- Arquitectos
- Atelier Pulver Architectes SA
- Ano
- 2021
- Status do projeto
- Built



















