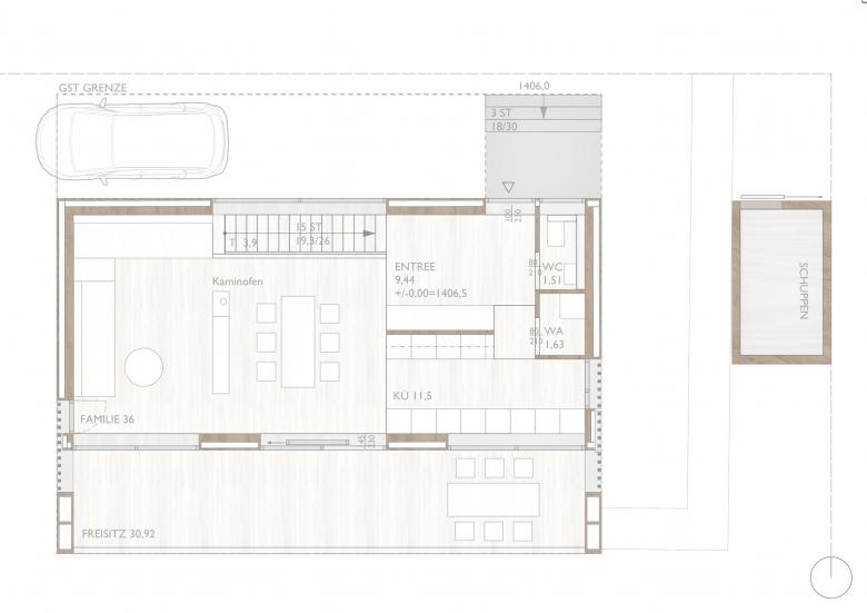
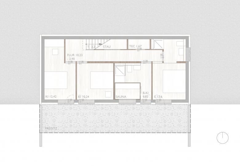
Nockhaus
Kärntner Nockberge, Áustria
Ferienhaus für eine sechsköpfige Familie auf kleinem Hanggrundstück in den Kärntner Nockbergen
- Arquitectos
- MORPHO-LOGIC Architekten BDA Stadtplaner
- Ano
- 2019
- Status do projeto
- Built
- Equipa
- MORPHO-LOGIC
Projetos relacionados
Revista
-
A Construção da semana
The Three-Body Problem: Trapped in a Wave Sandwich
Eduard Kögel, Scenic Architecture Office | 13.04.2026 -
-
























