PAGEONE Vinyl Concept BookStore POLPAS
L136+ L230, POLPAS, Olympic Park, Chaoyang District, Beijing, Beijing, China
At POLPAS in the Olympic Forest Park, Beijing, PAGEONE is set to unveil its inaugural Vinyl Concept Store. This new venture aspires to craft a fresh perspective that diverges from its predecessors and to encapsulate a novel chapter in the annals of PAGEONE's history.
In the space, books and vinyl records are celebrated as parallel mediums of documentation, remembrance, preservation, accumulation, and sharing. Their distinct methods of engagement and interpretation yield a harmonious yet unique blend of sensory experiences and atmospheric memories.
The interplay of paper and vinyl, sight and sound, fantasy and contemplation, weaves a narrative that transcends the physical, embedding stories within the very fabric of the space.
The intention is to create a haven where individuals can naturally and attentively read, absorb, ponder, and dream. The choice of materials, predominantly natural wood, is designed to evoke a sense of warmth and memory. The space is curated to ensure that every book and record is within reach, transforming the act of browsing into an immersive experience. These reading and music areas are crafted as sanctuaries where one can retreat, relax, and immerse oneself in the natural ambiance.
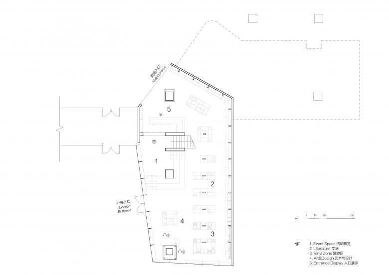
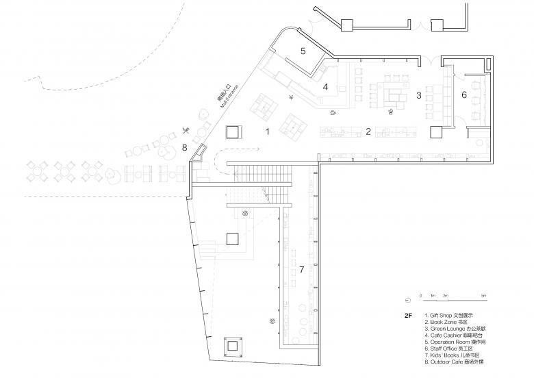
The main display wall within the store artfully reimagines the double-height space, converting it into a "vinyl concert hall" alongside cozy, human-scale zones for reading, coffee breaks, events, and children's activities. This design not only infuses the store with a rich vinyl atmosphere but also seamlessly blends diverse content categories.
There is no book or record out of reach. Display is not the focus of the space; instead, every area dedicated to reading and music is like a secluded retreat that can conceal itself, offering comfort, the touch of nature, and the ability to concentrate fully on reading and music.
PAGEONE POLPAS, situated in the northern reaches of Beijing's Olympic Forest Park, stands in dialogue with the BeijingFun store along the city's central axis, creating a north-south axis of cultural significance.
While PAGEONE BeijingFun mimics the vibrant street life of the city, offering a range of architectural spatial relationships, PAGEONE POLPAS aims to serve as a bench and an oasis within the park, providing a serene spot for citizens to concentrate and reconnect with their personal memories.
- Arquitectos
- LLLab.
- Ano
- 2023
- Status do projeto
- Built
- Structural Design
- LuanLu Structural Consulting













































