Pohjoisranta Housing
Pohjoisranta 2, Helsinki, Finland
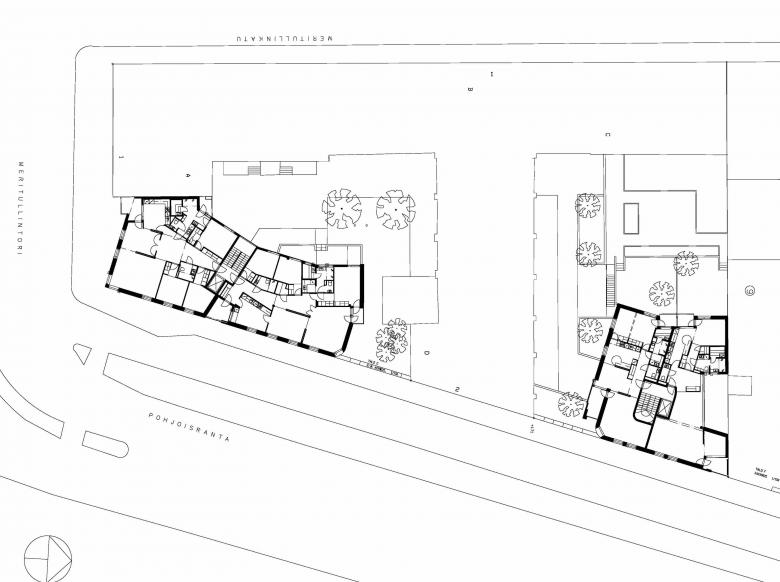
Two apartment buildings redefine a significant avenue corner, on the site of a former tobacco factory. A careful study of the infill site resulted in an elegantly proportioned composition, which meets the demands of the quality-conscious residents, as well as the historical seafront cityscape. The project entailed a great deal of balancing between contemporary demands, respect for the existing setting, and the requirements of the town plan. In an area representing a layered architectural history of Helsinki, the design does not imitate its surroundings, nor shout out its presence.
The buildings contain 16 apartments, some on two levels, with an average floor area of 133m². Business premises are also located on the street level.
The project was presented in the Finland Builds 8 Exhibition in the Museum of Finnish Architecture.
- Arquitectos
- Kirsti Sivén & Asko Takala
- Ano
- 1996
- Status do projeto
- Built
- Equipa
- Kirsti Sivén, Kristiina Timonen, Stefan Vara














