«Romolus & Remus» Doppel EFH
Rütihof, Suíça
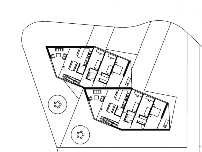
Realisiert 2006 - 2007. Der poligonale Grundriss entwickelt sich aus den örtlichen Gegebenheiten. Janusköpfig verfügt der Baukörper über zwei Hauptwohnrichtungen womit die örtliche Qualitäten wie Sonnengang und Aussicht vollumfänglich einbezogen werden.Das schwach nach Norden geneigte Grundstück wird von der Nordseite erschlossen. Der Zugang ist somit an der teifsten Stelle der Parzelle und führt über das nur teilweise in die Topographie eingelassene Erdgeschoss, in welchem eine Doppelgarage, ein Gästezimmer, ein Büro, sowie die Kellerräume eingeschrieben sind. Eine einläufige Treppe, welche in der Fassade tief eingeschmitten ist, führt in das Obergeschoss, in welchem drei Schlafzimmer, die Küche und der Wohn- Essraum organisiert sind. Über eine Stahltreppe gelangt man in die Lounge und auf die Dachterrasse.Durch eine Kaskadenartige Deckenkonstruktion wird eine progressive Raumhöhenentwicklung erzielt. Während die Schlafzimmer normale Raumhöhen von 2.4 - 2.6 Meter erreichen, weisen die Ess- und Wohnbereiche Raumhöhen von 2.7 Meter auf.Die Statik erfolgt über zwei Wandscheiben und einen tragenden Kern, was eine weitgehend offene Gestaltung des Baukörpers ermöglicht.
- Arquitectos
- haefele schmid architekten ag
- Ano
- 2006
- Status do projeto
- Design















