Schrom Studios
New York, USA
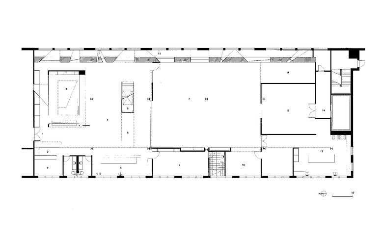
This project is an adaptation of a 3,800 square foot industrial loft space into a residence. The space is on the second floor of a loft building in lower Manhattan. The design evolved from explorations of ambiguities between public and private by means of partial enclosures, transparent materials, and the character and uses of the space.
The space centers around a music gallery. A glass and steel wall facing the gallery is a blank slate for musical notation and a reflective surface for sound. The gallery with its grand piano becomes the ‘heart’ of the space, and an interior focus.
As the design developed the space assumed a dispersed and open character. In the final design there are no solid walls. A full-height glass and steel wall marks the major division of master bedroom and bath from the rest of the apartment. At any moment, from any position, the intention is to be able to experience the full dimension of the loft, with the elements of the program distributed freely in the space. This disposition yields a complex space of changing perspectives and points of view. Movable panels allow for the creation of smaller, intimate spaces to accommodate overnight guests in the area adjacent to the master bedroom.
The steel and glass wall divides the master bedroom and bath from the rest of the apartment. Curtains telescope in and out from two bays in the center of this wall where sandblasted glass panels give privacy to the bath. The curtain allows the inhabitant to control the openness of the space.
Opposite, a maple cabinet contains a curved steel and glass wall. This cabinet also marks a boundary between the music gallery and the kitchen and guest bath.
Full-height painted wood panels close down the rear of the apartment. Open, the panels float in the space; closed, they demarcate one room; closed further, two rooms. The disposition of the space depends on the desire of the inhabitant.
The rear wall is a bookcase and storage cabinet. This linear planar element becomes a loosely defined library.
















