Schulanlage Eselriet, Effretikon
Selektiver Wettbewerb, 2. Preis, 2022.
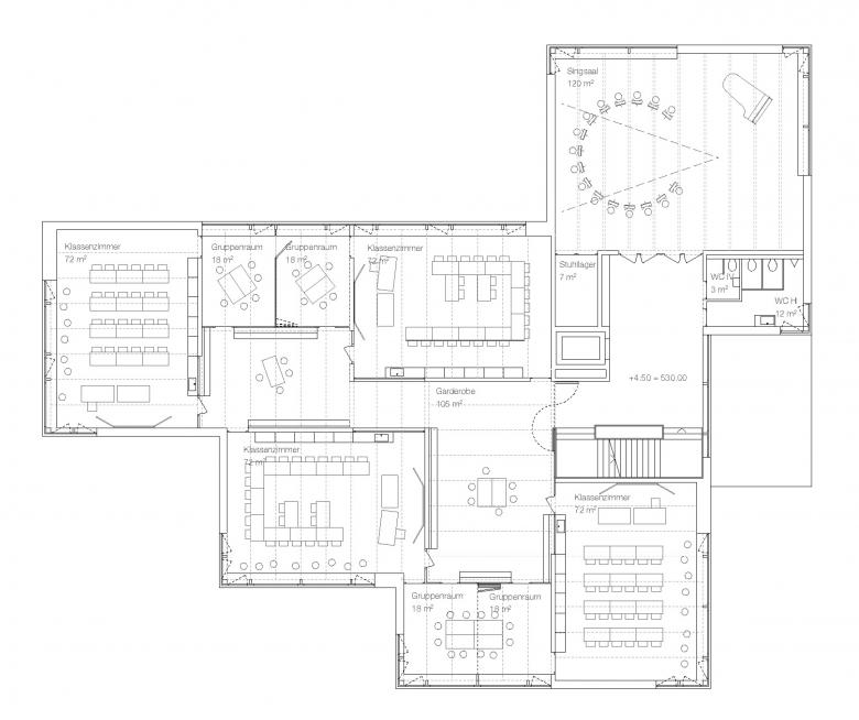
Die Gesamtanlage wird geprägt von Solitärgebäuden mit einer gemeinsamen gepflästerten Mitte. Diese Grundanordnung wird im dreigeschosssigen Ersatzneubau fortgeführt. Der Schulhof ist der adress- und identitätsbildende Freiraum. Auch der Neubau richtet sich mit seinem Eingang zum Schulhof. Zu den älteren Zwillingen gesellt sich ein jüngeres Geschwister.
Die orthogonal abgetreppte Klassenzimmerfassade verweist auf die inhaltliche Verwandschaft zu den Nachbarn, erzählt aber auch bereits von der Konstruktion als zeitgemässer Holzbau.
Die verschiedenen Nutzungen werden im Neubau denkbar einfach über die Geschosse angeordnet. Im 1.OG werden die beiden Cluster bestehend aus je zwei Klassenzimmer und Gruppenräume um eine klar zonierte Garderobe zur Einheit zusammengeschlossen. Zusätzliche Türen in den mittleren beiden Klassenzimmern ermöglichen ein Zusammenarbeiten in unterschiedlichen Konstellationen und führen zu einem flexiblen Raumgefüge.
- Arquitectos
- Studio Barrus
- Status do projeto
- Design
- Cliente
- Stadt Illnau-Effretikon
- Zusammenarbeit
- Weber Weber Architekten
- Baumanagement
- Bühlmann Architekten
- Landschaftsarchitektur
- Skala Landschaft Stadt Raum














