Umbau eines ehemaligen Postgebäudes
Morsbach, Alemanha
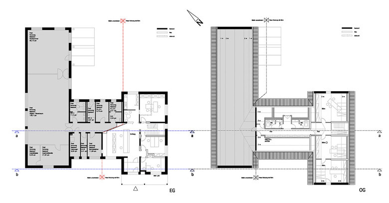
Im Jahr 1986 wurde das Gebäude zu einer Post umgebaut und wurde 2008 von LHVH Architekten zu Geschäftsräumen für eine Immobilienfirma um- und ausgebaut. Das Postgebäude ist im Stil der Fachwerkarchitektur erbaut worden. Im östlichen Teil ist stets die örtliche Post beherbergt. Der Wunsch des Bauherrn - ein offenes Raumkonzept über zwei Ebenen mit Möglichkeiten des Rückzugs für Besprechungen zu konzipieren - wurde durch eine klar strukturierte Grundrissorganisation erfüllt. Die Aussicht und die Belichtung des Giebels standen dabei im Fokus des Entwurfs. Materialien wie Beton, Stahl, Mauerwerk und Nadelholz unterstützen diese Reduktion auf das Wesentliche und definieren den klaren und ausdrucksstarken Gedanken des innenarchitektonischen Konzeptes.
Im Erdgeschoss wird der Besucher an einer eigens konzipierten Empfangstheke willkommen geheißen. Eine Küche, Besprechungs- und Warteräume, sowie Nassräume befinden sich in unmittelbarer Nähe und sind in teils offener und geschlossener Weise an den Empfang angegliedert.
Ein lichtdurchfluteter Treppenraum führt in das Giebelgeschoss, wo sich drei Einzelbüros, ein Lager und Nassräume befinden. Die Türen und Fenster, die zum einen zur Hauptstraße gen Norden und zur Gemeindekirche gen Süden zeigen, liegen in einer axialen Struktur und weisen ein hohes Maß an Rhythmik auf und erhellen den einst dunklen Giebelraum mit viel Tageslicht. Der Spagat zwischen Alt und Neu wird durch die entwurfsbestimmenden Faktoren klar gemeistert.
- Ano
- 2008
- Status do projeto
- Built














