Um- und Ausbau Kantonales Zeughaus Aarau
Aarau (AG), Suíça
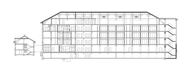
Das Zeughaus «Rössligut» wurde von 1931-33 vom Architekten Karl Schneider erstellt. Die architektonische Gestalt und das ausgeprägt pragmatische Tragwerk zeugen von den 1930er Jahren, in denen das Ringen zwischen avantgardistischer Moderne und Verharren in klassischen Denkweisen offensichtlich zum Ausdruck kam. Diese zeittypischen Merkmale sind auch am Zeughaus Aarau nicht spurlos vorbeigegangen. Die Betonung der Horizontalität durch die Gesimse an den Fassaden und den gleichzeitig vertikal ausgeprägten Fensteröffnungen machen dies offensichtlich. Diese Ambivalenz zeichnet sich auch in der volumetrischen Ausprägung des Gebäudes an wenigen Feinheiten ab. So gliedert der, über die Fassadenflucht hervortretende und deutlich über die Traufkante ragende Treppenhausturm an der repräsentierenden Strassenfassade, das Gebäude in einen Kopf und einen Rumpf. Gleichzeitig markiert er als ordnender Sekundant den Hauptzugang in der anschliessenden Vorhalle und verleiht dem Gebäude einen repräsentativen Charakter. Demgegenüber weist der nordseitige, eingeschossige Anbau erstaunlich dynamische Merkmale auf, indem dessen Gebäudecken radial abgerundet sind und dessen Fenster mit grossen, liegenden Öffnungen zu deutlichen Bändern geformt sind. Diese Eigenheit setzt sich im Inneren fort. Die Erschliessungs- und Infrastrukturräume gliedern auch hier das Geschoss in einen Kopf- und einen Rumpfbereich. Ein markantes Betonskelett, gebildet aus einem Stützenpaar in der Raummitte und Unterzügen, überspannen die Räume bis zur Fassade in Querrichtung und gliedern so den offenen Grundriss in drei Teilbereiche. Die Unterzüge greifen in die Aussenmauer ein, deren Oberfläche hingegen bleibt ohne plastische Wirkung. Währenddem die Regel des Tragwerks das Geschoss überspannt, folgt es im Erschliessungsbereich der Raumbildung, was als pragmatischer Bruch verstanden werden kann.
Die typologisch störenden und strukturfremden Einbauten, welche sich über die Jahre auf allen Geschossen verdichtet haben, soll bis auf das ursprüngliche Tragwerk zurückgebaut werden. Dadurch wird die ursprünglich räumliche Klarheit wiedergewonnen, in deren Verständnis weiter gebaut werden kann. Eine wesentliche Rolle kommt dem expressiven Betonskelett zu, das in seiner Dominanz kaum zu verstecken ist. Scheinbar selbstverständlich wird der Weg zu den Grossräumen aufgezeigt, die durch die querlaufenden Unterzüge in Abschnitte gegliedert sind. Ausgangspunkt ist geschossweise eine klar definierte Treppenhalle, aus der man die Grossräume betreten kann. Diese soll in seiner vollständigen Dimension wieder hergestellt werden.
Die Räumlichkeiten für die neue Nutzung soll unter Respektierung der ursprünglichen Strukturen erfolgen. Als Reminiszenz an die Zeit des Zeughauses wird die Raumbildung so vorgesehen, dass mit den neuen Einbauten die starke Präsenz des rohen Betonskelettes auf allen Geschossen spürbar bleibt. Die zeitgenössischen Eingriffe unterscheiden sich dabei insofern, dass sie sich als mehrheitlich hölzerne Einbauten in das bestehende Ordnungsprinzip einfügen. Immer wieder zeigt sich das Tragwerk und die rohen Oberflächen der Decken durch die Einbauten hindurch. Dieser feine Kontrast der Gegenüberstellung und Inszenierung von rohem Betontragwerk und hölzernen Einbauten strahlt erst im Zusammenspiel eine optische und haptische Behaglichkeit aus. Einzig im Erdgeschoss wird die Tradition des pragmatischen Ausfachens mit geschlämmten Backsteinen aufgegriffen. Deckungsgleich folgt die Raumbildung der Gliederung des Betonskeletts und formt grundsätzlich die allgemein zugänglichen Räumlichkeiten.
Der Entscheid, die bestehende Fluchttreppe durch einen Treppenanbau zu ersetzen resultiert aus der Überzeugung, dass sich an dieser Stelle ein Gebäudeteil in der vorgeschlagenen Form der Gesamtgestalt des Zeughauses in entsprechender Weise einordnen kann. Gegenüber dem Turm des Haupttreppenhauses an der repräsentativen Südfassade tritt der Treppenanbau weit zurückversetzt kaum in Erscheinung, liegt er doch in der Fortsetzung der Längsachse. Die Ausbildung der Dachkante ist soweit reduziert, dass das abstraktere Volumen nicht mit dem auskragenden Vordach des Gebäudes in Konkurrenz tritt.
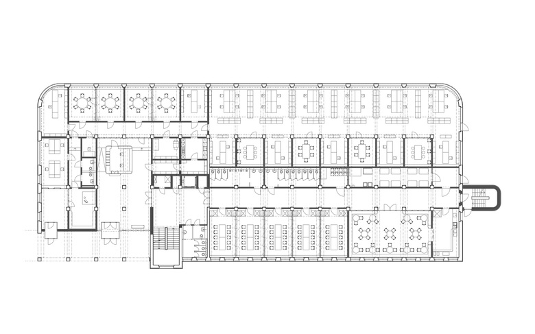
Von der Rohrerstrasse gelangt der Besucher zwischen der weit geöffneten Umfriedungsmauer hindurch zur eingezogenen Vorhalle am Zeughaus. Empfangen wird er am Schalter in der grosszügigen, durch rückseitige Oblichter belichteten Halle, in der alle Wege zu den Abteilungen und den Sitzungszimmern vorbeiführen (Sichtkontrolle). Anschliessend an die Empfangshalle vermittelt die Treppenhalle zwischen dem Eingang und dem Bereich der Sitzungszimmer. Gleichzeitig bildet sie den Auftakt zu den Geschossen. Auf denen ist jede Abteilung mit einem Sekretariat unmittelbar an den Treppenhallen gut auffindbar vertreten. So ist sichergestellt, dass die Besucher, ob begleitet oder unabhängig unterwegs, kontrolliert in die Abteilungen gelangen. Gleichzeitig kann das Sekretariat an dieser Stelle auch die Rolle einer sozialen Kontrolle wahrnehmen.
Die verschiedenen Abteilungen auf den Regelgeschossen sind nach dem immer selben Prinzip organisiert. In der Längsachse besetzen Sekretariate, Sitzungszimmer, Servicezonen, Tagesarchive in platzsparenden Compactusanlagen, Materiallager und Teeküchen die lichtarme Mitte des Grundrisses. Diesen zentral gelegenen und gut einsehbaren Räumen kommt eine wesentliche Rolle der identitätsstiftenden Bereiche einer jeden Abteilung zu.
In den zentral gelegenen und transparent ausgebildeten Sitzungszimmern können nicht nur formelle Sitzungen abgehalten werden, sondern auch bilaterale Gespräche in Arbeitsgruppen geführt, oder täglich Kaffee getrunken werden. Dafür sind die Räume mit textilen Vorhängen ausgestattet, dass der Grad an Diskretion variiert werden kann. Diese konzentrierten Bereiche lassen dennoch immer wieder Durchblicke zwischen den Raumseiten zu. So ist sichergestellt, dass die Arbeitsplätze konsequent entlang den gut belichteten Aussenwänden in unterschiedlich grossen Kojen aufgereiht werden können. Die Grössen dieser Kojen können durch die Lage der Einzelbüros nach Bedürfnissen der verschiedenen Arbeitsgruppen variiert werden. Überschaubare Kojen für Praktikanten oder für Reservearbeitsplätze lassen sich so entsprechend den Anforderungen der verschiedenen Abteilungen ausbilden. Hierfür sind die Einzelbüros – in denen auch Doppelarbeitsplätze platz finden – in einer Leichtbauweise deckungsgleich unter die Unterzüge gestellt, so dass die Arbeitsbereiche zueinander kongruent bleiben. So ist eine Büro- und Verwaltungs-
infrastruktur sichergestellt, die langfristig für eine bedürfnisgerechte Flexibilität ausgerichtet ist. Zwischen den Arbeitsplätzen und den Räumen in der Längsachse sind weitere Bereiche vorgesehen, welche für gut zugängliche Tagesarchive und Teamablagen bereit stehen. In dieser Zone können Ablagen von unterschiedlicher Länge und Höhe angeordnet werden, so dass auf sich verändernde Bedürfnisse nicht nur am Arbeitsplatz, sondern auch in der Arbeitsgruppe reagiert werden kann.
Im Erdgeschoss entspricht das grundsätzliche Organisationsprinzip weitgehend dem der Regelgeschosse. Sämtliche Arbeitsplätze sind entweder an der gut belichteten Aussenwand angeordnet, oder erhalten durch das lineare Oblicht über dem Vorbau blendfreies Tageslicht in der Raumtiefe. Die einzelnen Kojen der Arbeitsbereiche können vor allem in der Raumtiefe mit höheren Regalen zwischen den Arbeitsplätzen zusätzlich gegliedert werden. Für Teamablagen stehen wie in den Regelgeschossen entlang dem mittig geführten Erschliessungsbereich Ablagen zur Verfügung.
- Arquitectos
- nik biedermann architekten gmbh
- Ano
- 2014 - heute
- Status do projeto
- Under Construction
- Programm
- Verwaltung Departement Gesundheit und Soziales
- Bauherr
- Kanton Aargau
- Architekten
- nik biedermann architekt
- Baurealisation
- b + p baurealisation AG
- Rauminhalt SIA 416
- ca. 23'200 m3
- Gebäudekosten BKP 2
- ca. Fr. 10'000'000.-
- Projektwettbewerb im selektiven Verfahren
- 2013, 1. Rang
Projetos relacionados
Revista
-
-
A Construção da semana
The Three-Body Problem: Trapped in a Wave Sandwich
Eduard Kögel, Scenic Architecture Office | 13.04.2026 -













