Verdichtung Wohnsiedlung Frankental
Zürich (ZH), Suíça
Die bestehende Wohnsiedlung Frankental, am Stadtrand von Zürich-Höngg gelegen, ist städtebaulich auf sich bezogen. Lediglich die erste der drei Zeilenbauten schafft eine Kopfsituation zur platzartigen Aufweitung am Ortseingang mit Tramwendschlaufe und Bushaltestelle. Übergeordnet schaffen die drei Wohnscheiben aus den 60-er Jahren dank der Hanglage und ihrer diagonal verschobenen Situierung jedoch räumliche Bezüge zwischen den Weiten der im Süd-Osten gelegenen Stadt mit dahinter liegendem Alpenvorland sowie dem im Süd- Westen gelegenen Limmattal.
Ohne die schlüssig situierten Wohnscheiben in Frage zu stellen, werden drei neue, punktförmige Bauten gesetzt. Die beiden vorderen Häuser besetzten die Zwischenräume so, dass ein ausreichender Abstand zu den umliegenden Bauten entsteht und für die hangseitigen Nachbarn der Talblick offen bleibt. Der dritte Baukörper ist in den Hangfuss gesetzt und lässt, von Grünfächen umschlossen, den Blick auf den Rebhügel offen. Die Neubauten sind ihrem direkten Umfeld entsprechend dimensioniert und bilden durch ihre leicht variiert Ausformulierung ein eigenständiges Ensemble das den neuen Siedlungsschwerpunkt generiert. Die Konrad-Ilg-Strasse wandelt sich zu einer offenen und freien Platzfigur die sich zwischen den Gebäuden aufspannt. Sie dient der gesamten Siedlung als grosszügige Spielfläche, als Begegnungs- und Aufenthaltsort, welcher die Bezüge der Gebäude untereinander unterstreicht. Die bestehenden Bauten werden integriert, deren übersichtliche Adressbildung bleibt erhalten.
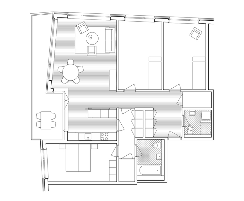
Alle drei Gebäude sind als Mehrspänner rationell organisiert und stellen damit eine adäquate Reaktion des formulierten Zieles dar, kostengünstigen Wohnungsbau zu realisieren. Sämtliche Wohnungen sind zweiseitig orientiert und profitieren somit vom Ausblick ins Limmattal aber ebenso hangseits in den grosszügigen zusammenhängenden Freiraum. Die städtebauliche Vorstellung, einen möglichst geringen „Fussabdruck“ zu hinterlassen, führt im Grundriss zu einer kompakten und damit rationellen Konzeption. Dem „Zwiebelschalenprinzip“ folgend, wird der Abfolge von innerem Treppenkern, dienenden Räumen, Wohn-/ und Schlafräume bis zur Fassade auch in der konstruktiven Ausbildung Rechnung getragen.
- Arquitectos
- nik biedermann architekten gmbh
- Ano
- 2010
- Status do projeto
- Design
- Programm
- 90 Genossenschaftswohnungen
- Auslober
- GEWOBAG / Amt für Hochbauten Stadt Zürich
- Architekten
- ARGE Biedermann / Stehrenberger / ERP
- Landschaftsarchitekten
- Andreas Geser Landschaftsarchitekten
- Rauminhalt SIA 416
- 56‘000 m3
- Gebäudekosten BKP 2
- Fr. ca. 32Mio.
- Studienauftrag
- 2010, 1. Rang
Projetos relacionados
Revista
-
-
-
A Construção da semana
The Three-Body Problem: Trapped in a Wave Sandwich
Eduard Kögel, Scenic Architecture Office | 13.04.2026 -









