Verwaltungsgebäude ARE
Ittigen, Suíça
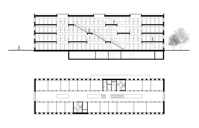
Das neue Bürogebäude für das Bundesamt für Raumentwicklung (ARE) nimmt volumetrisch und räumlich Bezug auf die benachbarten Verwaltungsbauten in Ittigen. Es übernimmt ihre Gebäudehöhe und schafft städtebaulich, mit seiner langen und schmalen Form, die räumliche Verbindung untereinander sowie einen durchlässigen Aussenraum im parkähnlichen Areal.
Als architektonisches Element steht eine offene, im Zentrum liegende Kaskadentreppe, welche die vier Bürogeschosse in der Vertikalen verbindet und spannende Sicht- und Lichtbezüge schafft. Der Kaskadenraum wird zum Begegnungsort im Gebäude mit kleinen Besprechungstischen und den zur Büronutzung zugehörigen Infrastrukturen wie Naharchiv und Kopierbereiche.
Der eigenständige Verwaltungsbau ist einfach und klar strukturiert und in moderner Element-Holzbauweise gefertigt. Er genügt modernsten Ansprüchen der Energie- und Ressourceneffizienz und erfüllt sowohl die Ziele der 2000-Watt-Geselschaft, Minergie-P-ECO sowie das Zertifikat GI GUTES INNENRAUMKLIMA für schadstoffarme Raumluft. Das Projekt wurde 2015 mit einer Anerkennung des Prix Lignum ausgezeichnet.
- Arquitectos
- Mischa Badertscher Architekten AG
- Ano
- 2013
- Status do projeto
- Built
- Cliente
- Bundesamt für Bauten und Logistik BBL











