Vogewosi Wohnanlage
Bauherr: Vorarlberger gemeinnützige Wohnungsbau- u. SiedlungsgmbH
Planer: DI Arch. Hans Hohenfellner
Mitarbeit: DI Hansjörg Thum
Bauleitung: Vorarlberger gemeinnützige Wohnungsbau- u. SiedlungsgmbH
Daten
Einreichung: Juni 2002
Baubeginn: 1. Baustufe – September 2003
Baufertigstellung: 1. Baustufe – April 2005
Grundstücksgröße: 7.313 m2
Überbaute Fläche: 2.921 m2
Wohnungsanzahl:
1. Baustufe derzeit ausgeführt - 24 Whg., WFL 1602 m2 – 6008 m3
2. Baustufe - 18 Whg., WFL 1266 m2 – 4800 m3
3. Baustufe - 24 Whg., WFL 1039 m2 – 4486 m3
Wohnfläche gesamt: 3909 m2
Umbauter Raum gesamt: 15294 m3
Carports: 3382 m3
Baubeschreibung
Entwurfskonzept
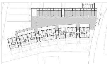
Die Wohnanlage wird in drei Reihen auf den bestehenden Terrassen so eingebettet, dass durch die Höhenstaffelung die Aussichtslage optimal genutzt werden kann.
Die vordere Reihe, mit 24 Einheiten, verläuft in einem leichten Bogen und ist dem Geländeverlauf angepaßt. Die Baustufe 2 umfaßt 18 Wohneinheiten, die dritte Baustufe beinhaltet betreutes Wohnen und ist behindertengerecht mit einem Lift ausgestattet. Die Wohnanlage ist in Einzelhäuser mit wettergeschützten Stiegenhäusern so gegliedert, dass sie die Maßstäblichkeit der angrenzenden Bebauung aufnimmt. Durch die Ausdrehung der unteren Reihe entsteht im hinteren Bereich des Grundstückes ein großzügiger Kinderspielplatz.
Die Erschließung erfolgt hangparallel, jeweils von der Bergseite aus. Jeder Wohneinheit wird ein überdeckter PKW-Stellplatz mit angrenzendem Nebenraum zugeordnet. Die beiden Terrassen sind untereinander fußläufig über zwei Querverbindungen erreichbar.
Wohnungstypen
Mit dem Konzept eines einfachen Zweispänners werden pro Geschoss jeweils 2 Wohnungen erschlossen, sodass pro Hauseingang kleine Einheiten von 6 Wohnungen entstehen. Der bevorzugten Wohnlage entsprechend sind die Aufenthaltsräume mit Wohn- und Essbereichen nach Süden gerichtet. WC, Bad und Abstellraum sind mittig situiert und teilen gleichzeitig den Wohn- und Schlafbereich.
Die erdgeschossigen Wohnungen erhalten einen Gartenanteil, die darüberliegenden Wohnungen Loggien mit 2 m Nutztiefe über die gesamte Wohnungsbreite.
Material und Konstruktion
Massivbau mit tragenden Aussenwänden und Geschoßdecken und Balkonplatten in Stahlbeton bzw. Stahlbetonfertigteilen. Südseitig raumhohe Fixverglasung mit öffenbaren Flügeln und Schiebeläden als Beschattung. Die Stiegenhäuser als Pufferräume sind einfach verglast. Treppenausführung in Fertigteilen.
Als Fassadenmaterial wurden rotbraune Kompaktplatten gewählt, welche auf einer vorgehängten Konstruktion hinterlüftet angebracht sind. Die Farbgebung nimmt Rücksicht auf die besondere Lage und fügt sich harmonisch in den Naturraum ein. Das Hervorheben der Einzelbaukörper wird besonders durch die Transparenz der Stiegenhäuser erzielt.
Die Wohnanlage Mühleweg unterstreicht die bevorzugte Wohnlage, geht auf die topografischen Gegebenheiten ein und berücksichtigt die wirtschaftlichen Randbedingungen.
- Arquitectos
- Hans Hohenfellner
- Ano
- 2006
- Status do projeto
- Built
Projetos relacionados
Revista
-
A Construção da semana
The Three-Body Problem: Trapped in a Wave Sandwich
Eduard Kögel, Scenic Architecture Office | 13.04.2026 -
-








