Winterstadion in Hronov
Czech Republic
Study of winter stadium in Hronov
Motto
There is no power in the world to make sure that wherever we spend our time together with that place belongs. The degree of certainty is directly proportional to the amount of time spent in the environment.
Context
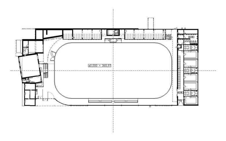
The existing "ice rink" is located on the border of the city centre, in an urbanistically integrated area with the First Republic built as one of the more valuable in the city. The plot of land is delimited by Palackého Street with an impressive alley of mature lindens from the west side, and a steep slope rising from the east ends with a functionalist Sokol building. Among other things, we appreciate the inscription SOKOL on the western facade, where the chosen typeface style, together with the function and architecture of the building, perfectly represent the spirit of the time. And it was the moment of belonging that inspired us to a similar approach in the design of our design.
The aforementioned linden alley co-creates the future face of the building. We only supplement this vivid and changeable main facade with other prosaic layers, which in sum, theatrically, create a transition between the outside and the inside world, in which the true story of the whole house is unfolding.
An important moment of the design is the relocation of the main entrance to the stadium on the axis of Havlíčkova Street, which is perpendicular to Palacký Avenue. This entrance is conceived as a colourful ending of Havlíčkova Street - a promising acronym, a kind of "funnel" that draws visitors into the bowels of the house.
Solution
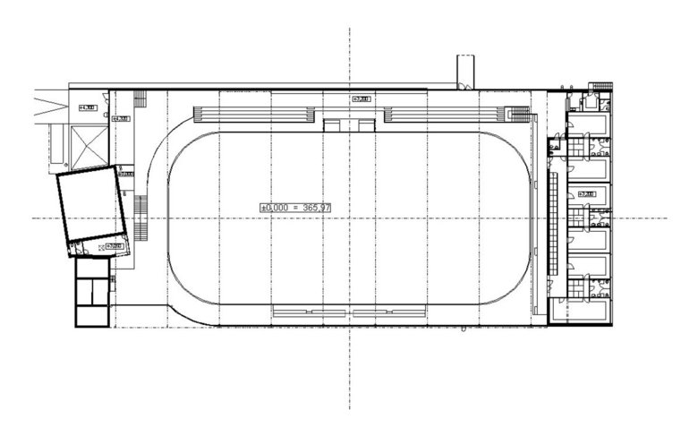
The stadium consists of three parts. The entrance opens into the main area - the hall with an ice surface. This is defined by the technological background of the stadium, including the transformer station, which had to be preserved. On the right side of the hall, we located a block of dressing rooms. We see the grandstand along the longer side as an artificial ending of the slope behind the stadium. The described structure corresponds to the plan of gradual realization of the construction. Therefore, the individual functional parts are also largely left in place. In the first stage, a new ice surface will be created and the freezing technology will be modernized. In the second phase, the roofing of the ice surface will be carried out, in the third phase the players' changing rooms will be built. The fourth stage will complete the technology building on the north side.
Materials
Trapezoidal sheet metal is designed for the stadium cladding, which enables smooth connection of the buildings of individual stages. The silver colour of the cladding and roof cladding, the deep blue entrance hinged door and the dark grey metallic colour of the exterior pillars create a feeling of coldness that makes it clear which sport the stadium is designed for. Unlike the exterior, the interior of the building is designed to contrast the bright white ice surface and the dark to black background. The lightness of the outer shell with its inner depth creates the image of a half-opened chest with a bright glowing treasure in the evening operation, which we can look into ...
- Arquitectos
- Chmelař architekti
- Ano
- 2004
- Status do projeto
- Built
- Equipa
- David Chmelař, Milan Vít



















