Wohnen im Stall

Fläsch, Suíça
Der ehemalige Stall ist neu ein Wohnhaus
Photo © Ralph Feiner Fotografie, Malans/GR

In der einen Hälfte der Zwillingsstallscheune wird nun gewohnt. Mit einem minimalisierten Einbau bleibt das Erscheinungsbild erhalten. Natursteinmauern und Holzverkleidungen sind soweit als möglich belassen. Der neue Einbau zieht sich ins Innere zurück und die vorgelagerte Loggia zwischen den markanten Eckpfeilern verstärkt das Bild der ehemaligen Stallscheune.

Eingestellt ist ein Einbau aus Beton, ein zweigeschossiger offener Raum. Die Raumathmosphäre wird geprägt durch die Übernahme der ehemaligen Tenn-Struktur, die durchlässige Sicht- und Lichtführung und der speziell entworfenen neuen Beleuchtung.

Gartenzimmer
Photo © Ralph Feiner Fotografie, Malans/GR
Wohnzimmer
Photo © Ralph Feiner Fotografie, Malans/GR
Eingangsbereich
Photo © Ralph Feiner Fotografie, Malans/GR
Küche
Photo © Ralph Feiner Fotografie, Malans/GR
Bad OG
Photo © Ralph Feiner Fotografie, Malans/GR
Ortbetontreppe UG-EG
Photo © Ralph Feiner Fotografie, Malans/GR
Gäste-WC
Photo © Ralph Feiner Fotografie, Malans/GR
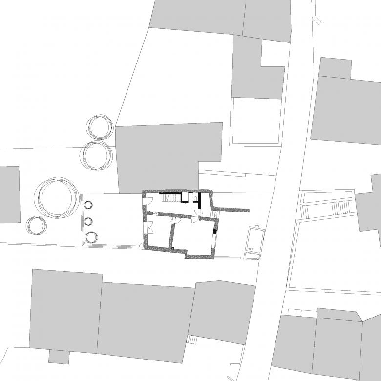
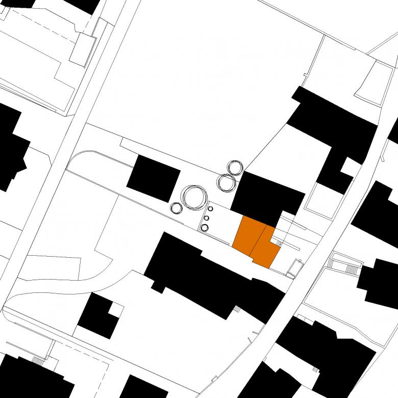
Situation
Drawing © atelier-f ag, Fläsch/GR
Grundriss Untergeschoss
Drawing © atelier-f ag, Fläsch/GR
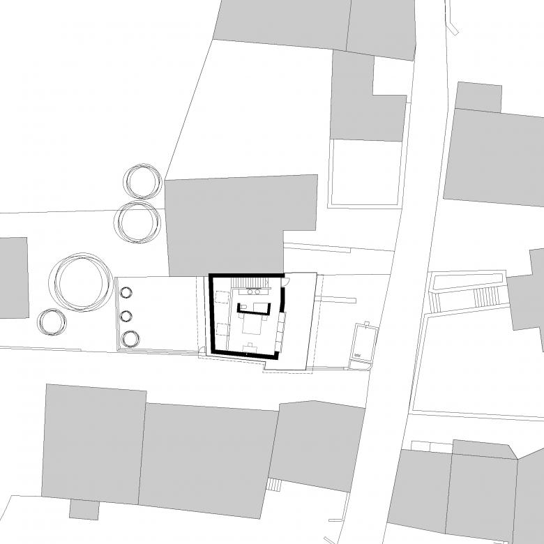
Grundriss Erdgeschoss
Drawing © atelier-f ag, Fläsch/GR
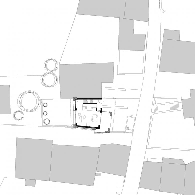
Grundriss Obergeschoss
Drawing © atelier-f ag, Fläsch/GR
Arquitectos
atelier-f architekten
Ano
2020
Status do projeto
Built

Projetos relacionados 

  • Moos
    playze
  • Reiters Reserve Premium Suiten
    BEHF Architects
  • Erweiterung und Instandsetzung Hallenbad Altstetten
    MIYO Visualisierung
  • Neubau von fünf Einfamilienhäusern
    Bäumlin+John AG
  • The Forge in der 105 Sumner Street in London
    Kiefer Klimatechnik GmbH

Revista 

Outros projetos por atelier-f architekten 

Weingut Davaz
Fläsch, Suíça
Gemeindehaus Nesslau
Nesslau, Suíça
Alphaus Prod Flumserberg
Flums, Suíça
Das weisse Haus Jenins
Jenins, Suíça
8 x 6 = 48
Pany, Suíça