Zweifamilienhaus Hammerstrasse
Die Herausforderung an der Hammerstrasse bestand darin, auf einem so kleinen Grundstück und unter Berücksichtigung von Baulinien und Abstandsvorschriften ein bewohnbares Volumen zu erfinden. Der Ersatzneubau an der Hammerstrasse veranschaulicht die konkreten Herausforderungen im Zusammenhang mit der Verdichtung und der Innenentwicklung an einem kleinen Objekt im Zürcher Seefeld.
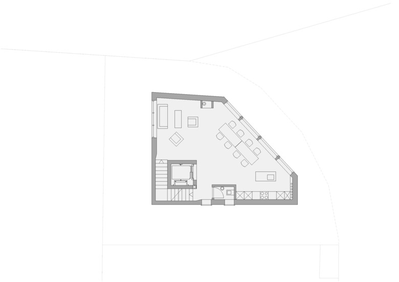
Auf der 203 m2 grossen Parzelle stand zuvor ein zweigeschossiges «Hüsli» aus dem Jahre 1840. Es konnten auf zwei Seiten Näherbaurechte ausgehandelt werden und die Feuerpolizei war bereit, die zwei Wohneinheiten als aufeinander gestapelte, zweigeschossige Einfamilienhäuser zu betrachten. Dies hat eine massgeschneiderte und sehr raumoptimierte Erschliessung ermöglicht inkl. Verbindung der insgesamt 6 Geschosse (4 Vollgeschosse, Attika und Untergeschoss) mit einem rollstuhlgängigen Lift.
Der Entwurf ist vom Ort abgeleitet. Die Ausrichtung der Parzelle nach Süden, die Topografie in Form eines bestehenden Sockels, die Strasse welche um diesen herumführt, die sehr heterogene Bebauung des Quartiers sowie der Ausblick auf den botanischen Garten haben das Gebäude in seiner spezifischen Form beeinflusst. Das Öffnungsbild der Fassade reagiert auf die verschiedenen Ein- und Ausblicke und auf den Grad der Privatheit der dahinter liegenden Räume.
- Arquitectos
- SLIK Architekten
- Ano
- 2011
- Status do projeto
- Built
- Cliente
- Privat










