Zweifamilienhäuser Böcklinstrasse
Böcklinstrasse, Bern, Suíça
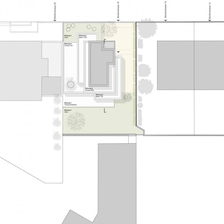
Das neue Gebäude befindet sich an der Böcklinstrasse im Burgernziel Quartier östlich von Bern auf engstem Grundstück und unterliegt verbindlichen Bauvorschriften. Das Haus ist auf fünf Ebenen mit einer Typologie von Maisonetten entwickelt. Die beiden übereinanderliegenden Stadtvillen präsentieren die Merkmale und Qualitäten einzelner Familienhäuser in Bezug auf Orientierung, Privatsphäre und Aussenräumen.












