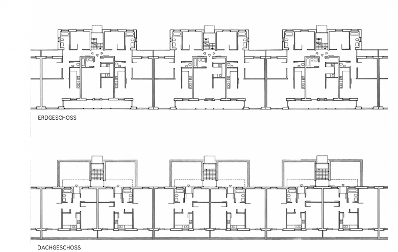
Wohnanlage Paderborn
Verdichtetes Wohnen als zweigeschossiges Reihenhaus- konzept mit Staffelgeschoss .
Zeilenbau in Nord – Süd Ausrichhtung, Wohnungen in Ost – Südwestausrichtung .
Barrierefreies Wohnen im EG.
- Ano
- 1994
- Status do projeto
- Built
Verdichtetes Wohnen als zweigeschossiges Reihenhaus- konzept mit Staffelgeschoss .
Zeilenbau in Nord – Süd Ausrichhtung, Wohnungen in Ost – Südwestausrichtung .
Barrierefreies Wohnen im EG.