Projektwettbewerb Neubau Zentralgebäude Johanneum
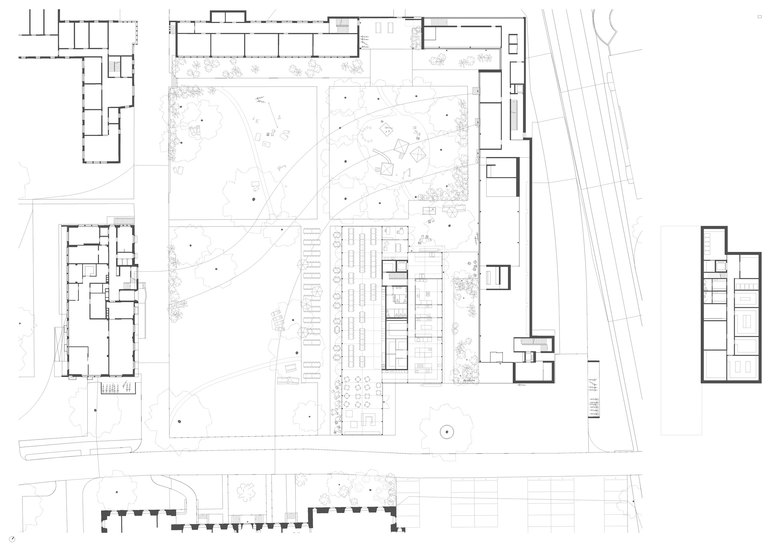
Das Projekt nimmt die im Wettbewerbsprogramm formulierte Kritik an der peripheren Lage der öffentlichen Aussenräume im Bestand zum Anlass, sowohl den Hofraum als auch den Vorplatz zur Klosterkirche räumlich zu präzisieren. Der dreiteilige Baukörper schliesst den Kirchenvorplatz ab und bildet so eine eindeutige Adresse für den Shop und die Auskunft und damit auch für das Johanneum insgesamt. Sämtliche umliegenden Gebäude werden so über diesen neu gefassten Vorraum erschlossen. Gleichzeitig spielt diese Setzung am Rand des Perimeters den Hofraum frei und macht die Fassade des Klosters zur neuen Raumbegrenzung. Der Hof wird damit über die gesamte Tiefe sichtbar und erhält eine neue Grosszügigkeit. Auch für den langfristig geplanten Ersatz des Schulhauses bietet dies räumlich präzise Voraussetzungen. Der Baukörper mit drei parallel verlaufenden Giebellinien orientiert sich an den am Ort vorgefundenen Nutzbauten wie der Gärtnerei oder den Unterständen westlich des Perimeters. Gleichzeitig fügt er sich dank Ausrichtung und orthogonaler Stellung in die vorhandene Ordnung des Gevierts ein. Die Eingeschossigkeit macht nicht bloss aus betrieblicher Sicht Sinn sondern führt auch dazu, dass das Haus auf sämtlichen Seiten pavillonartig in Erscheinung tritt. Die städtebauliche Setzung und einfache architektonische Operationen wie die aufgefalteten Vordächer geben dem untergeordneten Bauvolumen eine für ein Zentralgebäude adäquate Grosszügigkeit und Offenheit.
AUSSENRAUM UND PARK
Die Platzierung des Neubaus scheidet zwei verschiedene Aussenräume aus. Die bestehenden, teils asphaltierten, teils gepflasterten Flächen zwischen Klosterkirche und Haus Domino bleiben in diesem städtischen Charakter erhalten und werden lediglich durch eine Sommerlinde ergänzt. Das prägnante Vordach vor Cafeteria und Shop bildet einen einladenden Vorbereich. Die angrenzende asphaltierte Fläche vor der Produktionsküche dient als Kurzzeitstellplatz und Wendebereich der Anlieferung. Zwischen Zentralgebäude und Haus Domino führt ein breiter Asphaltstreifen, der partiell auch zur An- und Auslieferung genutzt wird, zu einem geschützten Aussensitzplatz. Dieser ersetzt die bestehende Terrasse und dient gleichzeitig dem Aufenthalt der Besucher des Mehrzweckraums im Haus Domino sowie dem Personal der Zentralküche, deren Pausenraum direkt angrenzt. Der Raum befindet sich unter der ausladenden Krone eines Kastanienbaums und ist zweiseitig von Strauchgruppen gefasst. Den asphaltierten Weg begleitet eine Zierrabatte. Sie ist zu den Enden hin mit Sträuchern bepflanzt und mittig von niedrigen Stauden und Blumen bedeckt. Die Rabatte bildet damit ein sich mit den Jahreszeiten veränderndes Bild für das Foyer zur rechten und die Arbeitsräume der Küche zur linken Hand. Dem Aussensitzplatz folgt ein ringförmig angeordneter Baumhain aus Buchen mit hoch ansetzenden Kronen. Vier Pfade über die umgebende Rasenfläche führen zum mittig liegenden, bekiesten Spielplatz. Dieser entspricht in der Grundfläche etwa dem bestehenden Spielbereich. Zur Südseite hin nimmt der Hain die Flucht des Zentralgebäudes auf und schliesst so die grosse Parkfläche räumlich ab. Diese ist nur punktuell mit Bäumen versehen. So soll der Raum zwischen Kloster und Schule als Einheit gelesen werden. Neben dem rechtwinkligen, am Ort vorherrschenden System der Hauptwege führen untergeordnete geschwungene Pfade über die Wiesen und bilden so kleine Schleichwege zum Speisesaal. Zugleich trennen sie höher bewachsene Blumenwiesen von kurzgeschnittenen Spielwiesenflächen ab. Die bestehende Zierrabatte unmittelbar vor dem Schulgebäude bleibt ebenso erhalten wie das schützende Vordach zwischen Haus Gallus und Haus Domino und mehrere grosse Laubbäume. Die im Zuge der Umlegung der Lindenhofstrasse erstellte Parkierungsanlage wird mittels neuem Durchgang zum Vorbereich des Schulgebäudes neu mit dem Wegsystem des Parks verknüpft. Entlang des Hauses Domino führt ein chaussierter Gehweg, der optional mit kleinen Treppen eine Verbindung von Innenraum und Parkanlage anbieten kann. Entlang der Fassade des Speisesaals weitet sich der mittige Gehweg zum grosszügigen Sitzplatz. Dieser ergänzt den befestigten Bereich unter dem ausladenden Vordach. Die parkartige Anlage bietet dem Johanneum insgesamt einen neuen Typus von Grünraum. Neben den weiten umgebenden Wiesen, den Wäldern und der eigenen Insel in der Thur wird dieser gefasste, dichte Raum zum zentralen kollektiven Treffpunkt und Aufenthaltsort.
ARCHITEKTUR UND ORGANISATION
Das Hauptmerkmal des Hauses bildet der schlanke, parallel zum Park verlaufende Saal. Dieser fasst die Nutzungen von Shop, Theke, Cafeteria und Speisesaal zusammen und bildet am Ende auf selbstverständliche Art und Weise eine Hauptadresse zum Kirchenvorplatz. Das Schnittprofil des Raums macht das schützende Dach zum Motiv. Die flächige Beplankung der Deckenunterseite ist hell gestrichen und verleiht dem Saal schlichte Noblesse und Festlichkeit. Durch diese neutrale Leichtigkeit sind viele unterschiedliche Nutzungen des Raumes denkbar. Gleichzeitig bringen die bunten Farbtöne der Möblierung eine Lebendigkeit mit, die im Farbspektrum des Parks seine Fortsetzung findet. Das geringe Achsmass der Struktur ermöglicht schlanke Stützen die mit den Rahmen der raumhohen Fenstertüren deckungsgleich sind. Die gleichmässige Befensterung entlang des gesamten Saals – gartenseitig vollständig öffenbar - wird so zum Panoramablick in den Park. Die transparenten Enden des Raums unterstreichen diese Offenheit und ermöglichen differenzierte Blicke in die unterschiedlichen Teile des Parks. Gleichzeitig ist es prinzipiell möglich, den Raum mittels Vorhängen in regelmässigen Abständen zu unterteilen. Die zentrale Schicht des Gebäudes beherbergt sämtliche Nebenräume der Küche, sanitäre Einrichtungen sowie die Erschliessung des Untergeschosses. Die dem Speisesaal gegenüberliegenden Räume umfassen die Arbeitsräume der Grossküche. Diese sind über der Arbeitshöhe verglast und ermöglichen Blickkontakt untereinander sowie die Sichtbarkeit des durchlaufenden Dachprofils. Die serielle Anordnung der Arbeitsräume in Kombination mit dem rückwärtigen Korridor erlauben effiziente Arbeitsabläufe mit kurzen Distanzen und eine einfache Trennung zwischen sauberen und schmutzigen Zonen. Die lange Theke im Saal kann über das Office bedient werden, während das Schmutzgeschirr auf der anderen Seite zum Abwasch transportiert wird. Die zur Umgebung niveaugleiche An- und Auslieferung erfolgt über den asphaltierten Weg. Das Untergeschoss mit zentralem Korridor ist flächenoptimiert und bietet trotzdem ausreichend Raum zum Rangieren von ein- und ausgehendem Material. Die Fassade ist umlaufend mit Fenstern auf unterschiedlicher Höhe versehen und ermöglicht dem Haus zu allen Seiten hin eine differenzierte Beziehung zum Aussenraum herzustellen ohne explizite Vorder- und Rückseiten auszubilden. Der Betrieb der Küche ist so vom Kirchenvorplatz als auch vom Foyer im Haus Domino aus sichtbar und erhält Wichtigkeit und Präsenz.
- Ano
- 2018
- Status do projeto
- Design



