Umbau und Sanierung Haus am Hang
In den 1930er-Jahren wurden die Hanglagen des Stuttgarter Westens bebaut. Viele Häuser entstanden in zweiter Reihe und sind von der Straße aus nur über schmale, teils lange Treppenwege erreichbar. Ihre Lage ist besonders idyllisch – und zugleich überraschend, denn von der Straße ahnt man nichts von den versteckten Terrassen mit alten Weinbergmauern, Obst- und Gemüsegärten, Brombeerhecken und Wiesen.
Dieses Haus gehört zu einer Gruppe baugleicher Gebäude, die von der Straße über eine gemeinsame Treppe zu erreichen sind. Nach dem Kauf sollte es für eine Familie mit kleinen Kindern saniert und – anfangs nur in kleinerem Umfang – umgebaut werden. Schließlich entwickelte sich jedoch eine weitreichende Neugestaltung. Ursprünglich als Dreiparteienhaus konzipiert, war vorgesehen, dass die Familie die beiden unteren Geschosse bewohnt, während das Dachgeschoss für Gäste oder Mieter separat bestehen bleibt.
Schnell stand fest, dass der Grundriss im Obergeschoss und das gemeinsame Treppenhaus im Wesentlichen unverändert bleiben sollten. Erst ein intensiver Vorentwurfsprozess machte deutlich, wie umfassend sich die Bauherren Veränderungen im Erdgeschoss wünschten.
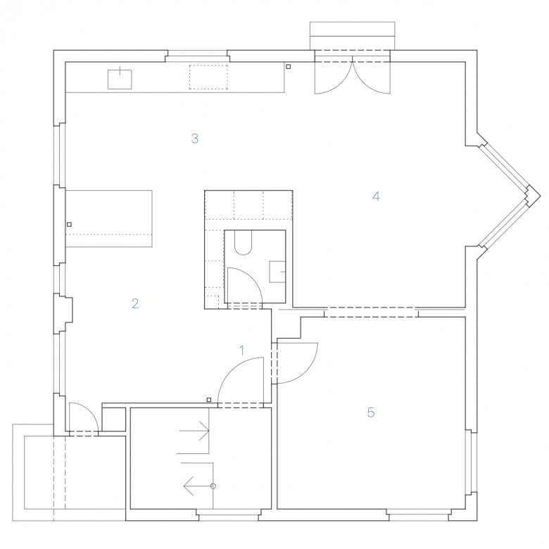
Das Ergebnis ist ein fast vollständig offener Grundriss, der sich um einen neu geschaffenen Schrankkern organisiert. Dieser strukturiert den Raum und schafft Bereiche mit ganz unterschiedlichen Qualitäten:
(1) einen Eingangsbereich mit Fächern und offenem Regal als Ablage (die Garderobe ist neben dem Hauseingang im darunterliegenden Geschoss)
(2) ein Esszimmer mit Balkon, Bar und Schränken für alles, was in Esstischnähe praktisch ist
(3) eine großzügige Küche mit viel Arbeitsfläche, Morgensonne und direktem
Zugang zur Terrasse
(4) ein zum Garten und zur Küche offenes Wohnzimmer mit Erker und Abendsonne
(5) sowie ein Rückzugszimmer, das – durch die Hanglage – wie ein Nest über dem Garten schwebt.
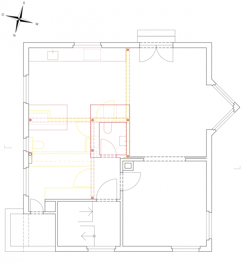
Das WC ist in den Schrankkern integriert und als Möbel ablesbar: Die Wände sind Möbelbauplatten, die Tür ist eine zu den Möbelfronten passende Schreineranfertigung und der Raum hat einen eigenen Bodenbelag.
Im Obergeschoss wurde das Bad durch Einbeziehung der ehemaligen Küche vergrößert. Beide Eingänge sowie Teile der Zwischenwand blieben erhalten. Das WC ist mit einer kleinen Badewanne kombiniert, die zwar selten benutzt wird, aber zusätzliche Möglichkeiten bietet. Nebenan befindet sich die Dusche, abgeschirmt vom lebhafteren Bereich am Waschbecken. Mit ihrer geschützten Lage und der Ausrichtung zum Balkon wird sie zu einem Ort der Ruhe und Entspannung. Der Balkon selbst scheint inmitten der Baumwipfel zu schweben; das umgebende Grün findet sich im dunkelgrünen Boden und der hellgrün gefliesten Wand wieder. Goldene Sprenkel im Boden und die sprichwörtlichen goldenen Wasserhähne wirken nicht prunkvoll, sondern als augenzwinkernde, schöne Details in einem ansonsten bodenständigen Umbau.
Eine besondere Herausforderung stellte die Heizung dar: Im Haus existierten zwei alte und eine neue Gaskombitherme sowie ein Gaseinzelofen. In Betracht gezogen wurden verschiedene Varianten – von einer teilweisen oder vollständigen Erneuerung der Gasheizung über Hybridlösungen mit Wärmepumpe bis hin zu einer Pelletheizung. Die Entscheidung fiel schließlich auf eine reine Wärmepumpe; die Gasversorgung wurde ganz aufgegeben. Erd- und Obergeschoss sowie die Garderobe im Eingangsgeschoss werden nun über Decken-Flächenheizungen versorgt, während das Dachgeschoss vorerst noch mit den bestehenden Heizkörpern beheizt wird, bis im nächsten Bauabschnitt die Dachsanierung erfolgt.
- Ano
- 2025
- Status do projeto
- Built







