Doppelkindergarten Schulweg 1

Schulweg 1, Lostorf, Suíça
Visualization © Luce.

Das ehemalige Wohnhaus mit der Werkstatt wird im Ortsbildinventar von Lostorf als erhaltenswert eingestuft. Der Bau bildet mit Schulweg 2 und Zehntenweg 9 rund um den Zehntenplatz ein Ensemble.

Um das Ortsbild zu wahren und einen angemessenen Umgang mit dem Erscheinungsbild des Ensembles zu gewährleisten, sieht das vorliegende Projekt einen Erweiterungsbau mit Sanie- rung des Bestandes vor. Zwei eingeschossige Erweiterungsflügel mit Flachdach umarmen neu den Altbau und fügen sich harmo- nisch mit ihm zusammen. Diese Erweiterungspavillons nehmen respektvoll Rücksicht auf die vorherrschende Bausubstanz. Der durchlaufende First des Hauptgebäudes mit dem Satteldach bleibt sichtbar.

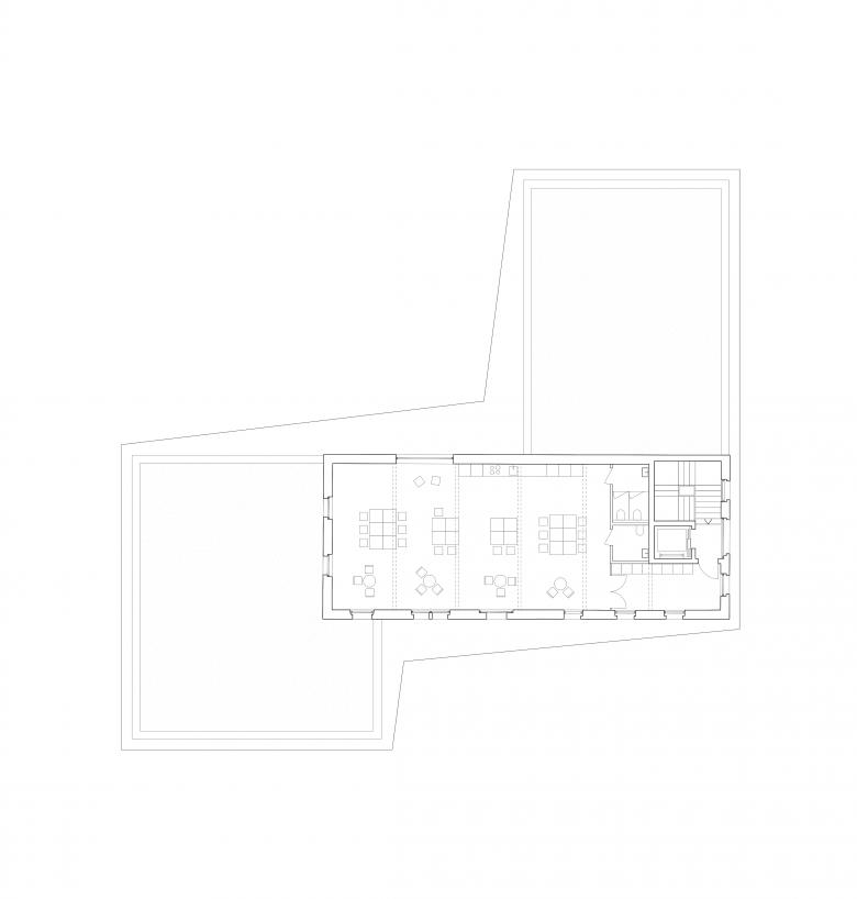
Um die betrieblichen Anforderungen an einen zeitgemässen Kindergarten optimal zu erfüllen, befinden sich die Unterrichts- und Gruppenräume in den neuen Pavillons, während im Altbau die Garderoben und die Nebennutzungen organisiert sind.
Im ersten Obergeschoss des Altbaus ist als Erweiterungsoption eine Fläche für zusätzliche schulnahe Angebote wie Mittagstisch oder frühe Sprachförderung vorgesehen, erschlossen durch den Einbau eines Kerns mit Treppe und Lift.
Der westliche Erweiterungsflügel erstreckt sich in Richtung Sandgrubenstrasse und stellt den Ankunftsort bzw. den Zugang zum Kindergarten dar. Ein Sockel markiert die Eingänge zu den drei verschiedenen Nutzungen. Diese leicht erhöhte Schwelle lehnt sich an die ortstypischen Vorgartenzonen an und dient auch als Moment der Begegnung und des Austauschs.

Im Norden erzeugen die beiden Gebäudeflügel einen geschütz- ten Garten, der im Westen durch die bestockte Böschung einge- grenzt wird. Seine Ausrichtung wirkt einer sommerlichen Über- hitzung entgegen. Die frei stehende Scheune bleibt erhalten und bietet Lagerfläche für schulische Nutzungen und schafft gleich- zeitig eine physische und visuelle Abgrenzung gegen Norden. Der Doppelkindergarten ist in zwei Einheiten unterteilt, damit die Kinder in kleinen Gruppen in familiärer Atmosphäre betreut werden können. Die beiden unabhängigen Kindergärten sind
ebenerdig organisiert mit hindernisfreiem Zugang zum Aussen- spielbereich. Die notwendigen Eingriffe im Terrain reduzieren sich auf einem Minimum.

Vom Schulweg herkommend, betreten die Kinder den jeweiligen Gruppenraum über den gedeckten Eingangsbereich entlang der Südfassade des Altbaus.

Die Garderobe ist jeweils als durchlässige Raumschicht von Fas- sade zu Fassade gespannt und verbindet ebenerdig den Eingang mit dem gedeckten Spielbereich des Aussenraums. Sie gliedert sich in eine Abfolge von drei Zonen: eine Vorhalle, die als Entree und Empfang dient, eine zentrale Umkleidezone mit Gardero- benschränken und Sitzmöglichkeiten sowie einen grosszügigen Vorraum, der direkt mit dem Unterrichtsraum und dem Spiel- garten verbunden ist, aber auch als Spielfläche dienen kann.

Die Unterrichtsräume sind zwei- bis dreiseitig natürlich be- lichtet und belüftet und können, dank ihrem quadratischen Grundriss, in verschiedene Nutzungsbereiche aufgeteilt werden. Zudem sind sie auf den gemeinsamen Spielgarten ausgerichtet, sodass die Lehrpersonen von innen einen guten Überblick über den Aussenraum haben. Der Gruppenraum kann dem Unter- richtsraum zugeschaltet oder von diesem abgetrennt werden. Ein separater Zugang von der Garderobe her gewährleistet eine flexible und unabhängige Nutzung. Der Arbeitsraum für die Lehrpersonen, mit integrierter Küche, befindet sich in der Nähe der Eingänge. Er ist von beiden Einheiten aus zugänglich und dient als Verbindungsstück zwischen den beiden Kindergärten.

Die beiden Erweiterungspavillons sind im Holzbau konzipiert und erscheinen als leichte und einfache Bauten: Ihre filigrane Struktur steht in respektvollem Kontrast zum muralen Charakter des Bestandesensembles.

Die umlaufende auskragende Vordachkonstruktion fungiert als Scharnier zwischen Alt- und Neubau und wirkt als einladendes Element. Ein Farbenspiel in Grün- und Rottönen prägt die Aus- senfassade und sorgt für ein kindergerechtes Erscheinungsbild.

Situationsplan
Drawing © studio berardi miglio
Erdgeschoss
Drawing © studio berardi miglio
Obergeschoss
Drawing © studio berardi miglio
Schnitte
Drawing © studio berardi miglio
Ansichte
Drawing © studio berardi miglio
Axonometrie
Drawing © studio berardi miglio
Ano
2023-2026
Status do projeto
Under Construction
Cliente
Einwohnergemeinde Lostorf
Bauingenieur
Synaxis
Landschaft
USUS
Projektwettbewerb
1. Preis

Outros projetos por studio berardi miglio 

Studio Beaudax
Zürich, Suíça
The School of Social Development
Bodgaun, Nepal
Neubau Kindergarten Palmenweg
Tägerwilen, Suíça