La casa cáscara de Marunys
El edificio, de apariencia masiva, corona un promontorio en el borde del tejido urbano, completando la fisiografía del lugar. La entrada, presidida por una plazoleta y un banco corrido reconoce el punto más alto, justo donde convergen dos caminos.
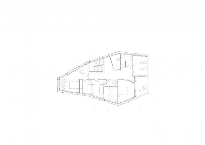
Partiendo de una hipotética casa rectangular, con cubierta a dos aguas y de estructura de bóvedas paralelas, el volumen se achaflana para abrazar el jardín a mediodía y adaptarse a la forma del camino.
Mantiene una posición de bis a bis con la masía de Marunys. Las respectivas caras estrechas se miran franqueando el camino. La nueva construcción también extiende vínculos con la tradición constructiva local, recordando la estrategia de implantación, el sistema estructural y la volumetría de la masía.
El conjunto está concebido con estructuras laminares que adoptan inercia por la forma, a partir de operaciones de plegado y curvado. La concavidad de techos y paredes acompaña la actividad interior, diferenciando ámbitos y rincones en una planta baja concebida como un espacio fluido.
Los tabiques y especialmente el techo son responsables de vestir un estuche refinado para el interior, en contraste con el carácter austero del hormigón encofrado con listones de pino. El patrón de la bóveda remite a lo textil, a los estampados, en definitiva a la escena doméstica. Acoge, da confort y es sensible a la variación lumínica y cromática, reverberando en función de las condiciones del entorno.
- Ano
- 2016
- Status do projeto
- Built
- Cliente
- Private
- Equipa
- Jordi Moret, Xevi Rodeja, Aina Roca, Adrià Masó, Laura Plana, Francesc Baqué, Dídac Franco, Jordi Collell, Paula Alejandro, Thommy Parra, Sergi Jiménez
- Aparejador
- Jesús Bassols Geli
- Cálculo estructural
- Miquel Capdevila
- Constructor
- Cros Encofrats, S.L., Jaume Coma Nogué, Plantalech, S.L., Daniel Faja Grabolosa, Mobles Iglesias























