Эрвье 24
Три жилых дома в микрорайоне "Европейский".
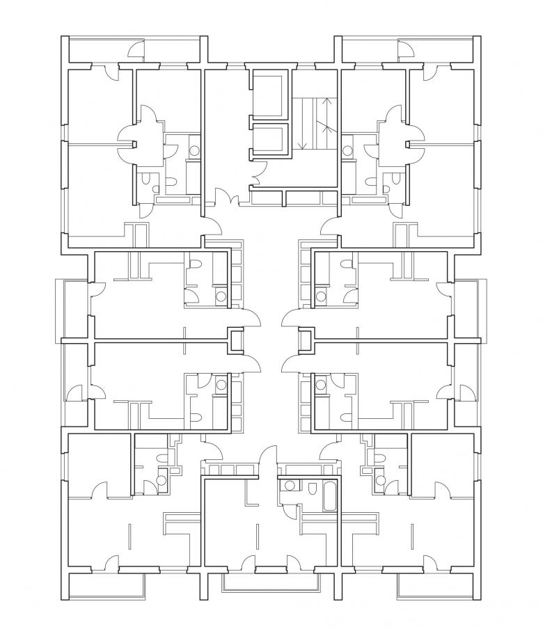
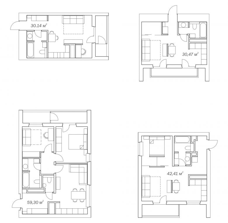
Проект развивает типологию жилья, ориентированного на аналоги европейского социального домостроения – это комфортные квартиры с чистовой отделкой и бытовым оборудованием, адресованные молодым или пожилым семьям и студентам. На момент проектирования эта типология была новинкой для российского рынка недвижимости. Комфорт прежде всего зависит от функционального зонирования, а не от размеров квартиры. Это стало ключевым тезисом проекта, начиная с разработки планировочной схемы и заканчивая дизайном интерьеров и решением благоустройства.
Параметры:
Площадь застройки – 1,32 га
Типология – башни
Количество наземных этажей – 17
Площадь – 17 205 м²
в том числе:
Жилая – 16 905 м²
Коммерческая – 300 м²
- Year
- 2009
- Project Status
- Built
- Client
- Brusnika
- Team
- Stanislav Belykh, Tatiana Zulkharneeva, Ekaterina Zharkova, Anastasia Shvetsova, Evgeny Volkov, Alexander Samarin, Rostislav Tsayzer, Ekaterina Udovik, Andrey Gushchin, Olesya Tsayzer, Anton Danilov














