爱马思艺术中心
爱马思艺术中心
爱马思艺术中心以“共生”作为主要理念,让新与旧、内与外、建筑与自然、艺术与人群之间和谐共生。本次改造合理运用了原有厂房空间,并在顶层和沿街面进行扩建,以此来满足美术馆未来多样的需求。
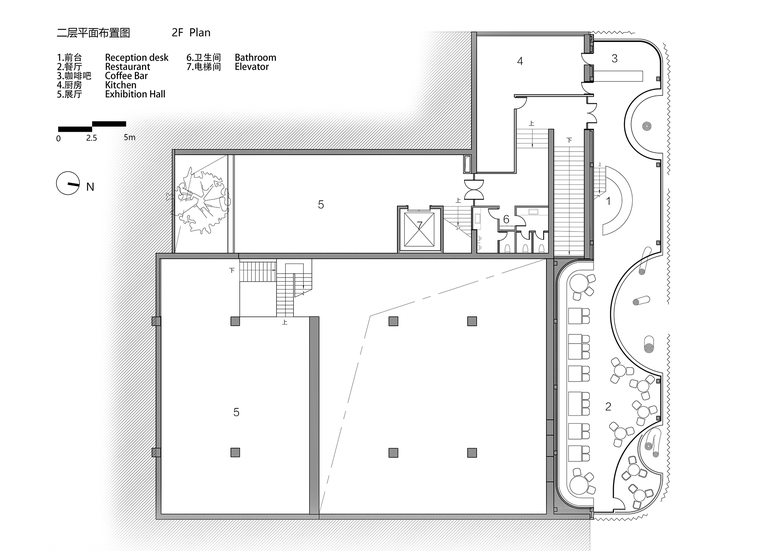
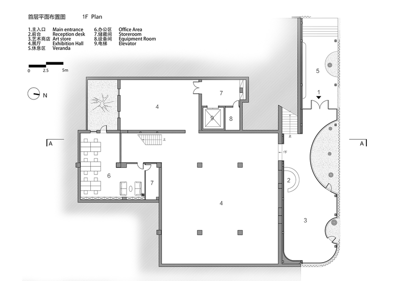
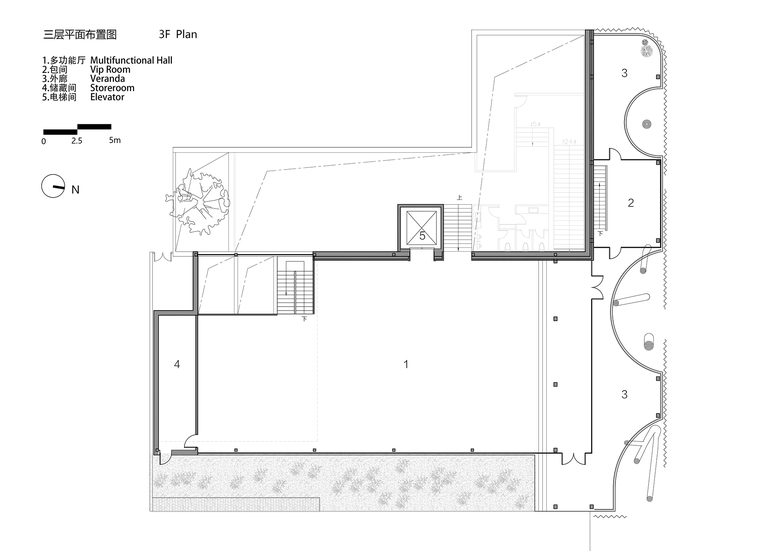
设计首先解构和整合了美术馆功能,在主展厅之外创造了新的公共空间(包括餐厅,衍生品商店,多功能厅,及休闲区等),形成了从自然环境-公共空间-展区的自然过渡。
其次,重新梳理整个空间的流线,原本的观展流线传统死板,单一路径使人在看完展后必须原路返回,不但枯燥而且上上下下带来的仪式感很多时候会让艺术空间和人产生强烈的距离感,所以在原有空间基础上拆改和增加了楼梯、电梯等,把观展流线改造成了一条循环流线,而如果要直接通往露台或者餐厅,也有两条顺畅独立的流线,路径不重复,看展即是令人兴致盎然的“游园”体验。
建筑中退让出多个弧形庭院,将场地中原本的树木被完整的保留下来,庭院与树木塑造出建筑清晰的空间性格特征。艺术馆内的游走也是伴随树木而展开的,从树根上升到树梢,人与树的关系不断变化,有的地方甚至人需要低头才能穿过树枝走过去。树木也随着时间不断变化,空间与自然的结合给场馆带来无限的魅力。外立面采用半透明金属幕墙,好似一片揭开的帷幕。树仿佛从银色外立面中生长出来,和这些“帷幕”连成一体,既是环境的一部分,又是建筑的一部分。
最终,通过改造使原本传统的“黑盒子”美术馆转变成为自然的、开放的、友好的、鼓励沟通的多功能艺术中心。
项目名称:爱马思艺术中心
设计范围:建筑改造+室内设计
项目地址:北京市朝阳区酒仙桥路798艺术园区
项目面积:3000㎡
主要材料:冲孔钢板,水泥自流平,水泥艺术漆
完工时间:2019年4月
设计公司:建筑营设计工作室(www.archstudio.cn)
主持设计:韩文强
设计团队:曹冲、文琛涵、黄涛
结构设计:张富华
水电设计:郑宝伟、程国丰
暖通设计:于研
摄影师:金伟琦、王宁

























