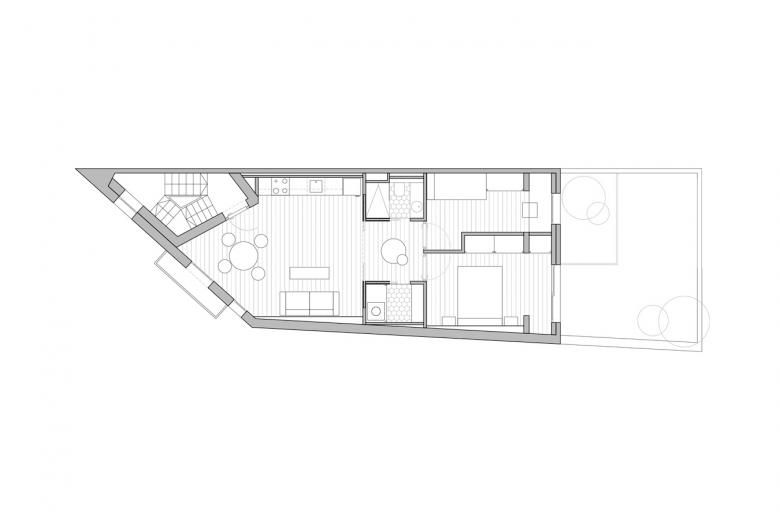
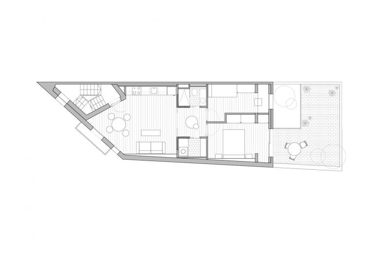
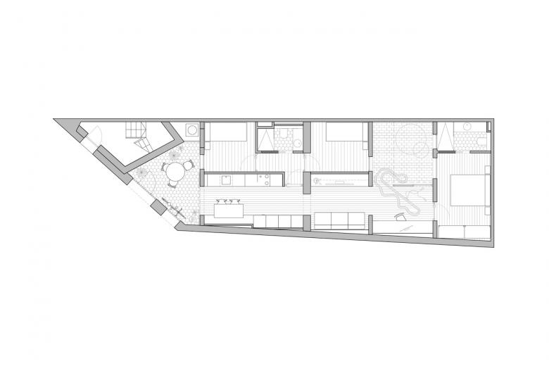
3 apartment renewal
Refurbishment of three apartments with terraces, using minimum cost construction criteria. With integral renovation of the distribution to improve lighting and natural ventilation.
- 年份
- 2020
- 项目状态
- 已建造
- 团队
- Sainza Hervella, Alejandra Pouplana, Sergi Estrella

















