Bildungszentrum Umweltschutz
Kastellstraße 9, Lauingen a. d. Donau, 德国
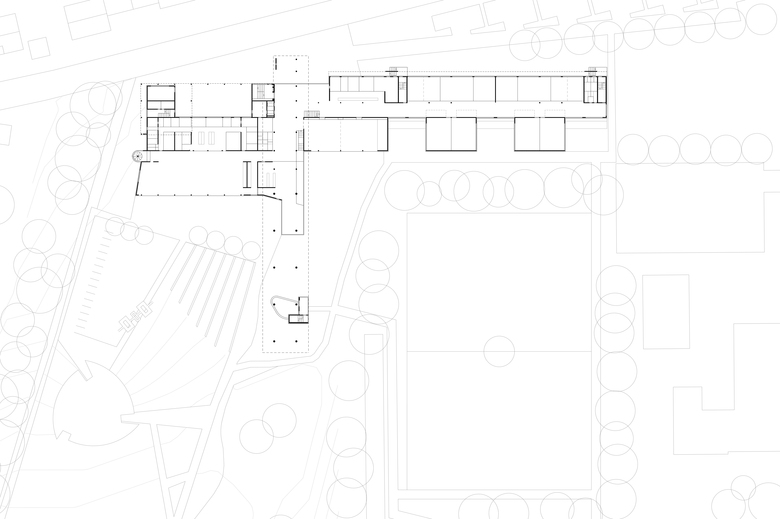
Die Gebäudekonfiguration antwortet auf den winkelförmigen Grundstückszuschnitt. Auch bei einer möglichen Erweiterung bleibt der Landschaftsverbrauch gering und der Zusammenhang der Freiflächen gewahrt. Die topographische Besonderheit - das Faiminger Tälchen - bleibt als großzügiger Grünraum erhalten. Die Aufständerung des Wohnflügels unterstützt dieses Freiraumkonzept. Die klare Baukörperausformung entspricht der inneren Organisation. Durch eine eindeutige Zonierung ist eine gute Orientierung gewährleistet. Die kompakte Bauweise mit bis zu sechs Geschossen minimiert die versiegelte Fläche und ermöglicht eine wirtschaftliche Realisierung. Im nordöstlichen Grundstücksteil wird der dreigeschossige Schulungstrakt mit Innenhöfen und Verwaltung angeordnet. Eine großzügige, über dreigeschossige Lufträume verknüpfte Erschließungszone dient dem kommunikativen Austausch.
Der direkte Freiraumbezug im Erdgeschoß zu begrünten Patios mit Wasserbecken und im 2. OG zu Dachterrassen ermöglicht dabei eine Erweiterung der Kommunikationszone ins Freie. In Nord-Süd-Richtung erstreckt sich der 4-geschossige Unterkunftsbau, der auf Stützen über dem Faiminger Tal schwebt. Als besondere Orte inszenieren die gerundeten Aufenthaltsräume als Insel im Wasser unter dem Gebäude den Außenraum. Im Kreuzungspunkt der beiden Gebäudeteile sind das mehrgeschossige Foyer und die Vertikalerschließung organisiert. Von hier werden sowohl die allgemeinen Bereiche Cafeteria, Speisesaal und Aula wie auch die im Souterrain liegenden Freizeiträume und das Bierstüberl erschlossen. Das nach Süden fallende Gelände ermöglicht die natürliche Belichtung und Belüftung dieser Räume.
Wettbewerb
1994, 1. Preis
Bauherr
Bayerische Verwaltungsschule
HNF
9.200 m²
BGF
14.920 m²
Leistungsphasen
1 – 9 HOAI
Fotos
Jens Weber
- 年份
- 1998
- 项目状态
- 已建造










