CCIL Campus
Chicago, IL, 美國
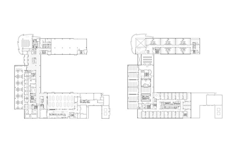
The Chicago Christian Industrial League, a provider of social services, commissioned Krueck and Sexton to design a new campus for re-location and expansion. Located in Chicago's Lawndale neighborhood, the 125,000 square foot mixed-use program includes housing for families and single men and women, as well as social services, training classrooms, administration and support.
The image of the campus is that of a welcoming and modern organization, dedicated to improving the lives its clients. A landscaped courtyard creates an inward focus appropriate for activities requiring privacy and protection, such as daycare and housing.
Energy efficiency, a green roof, recyclable materials, natural stormwater management and other sustainable design principles are an integral part of the project.
- 年份
- 2006
- 项目状态
- 已建造











