Dorf- und Bildungszentrum Wollerau
Wollerau, 瑞士
- 年份
- 2026
- 项目状态
- 正在施工
- Auftraggeber
- Gemeinde Wollerau, Schwyz
- Landschaftsarchitektur
- Antòn Landschaft
- Baumanagement
- BGS & Partner Architekten
- Wettbewerb
- 2015, 1. Preis
- Aufgabe
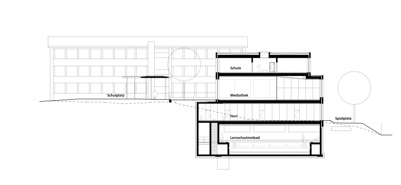
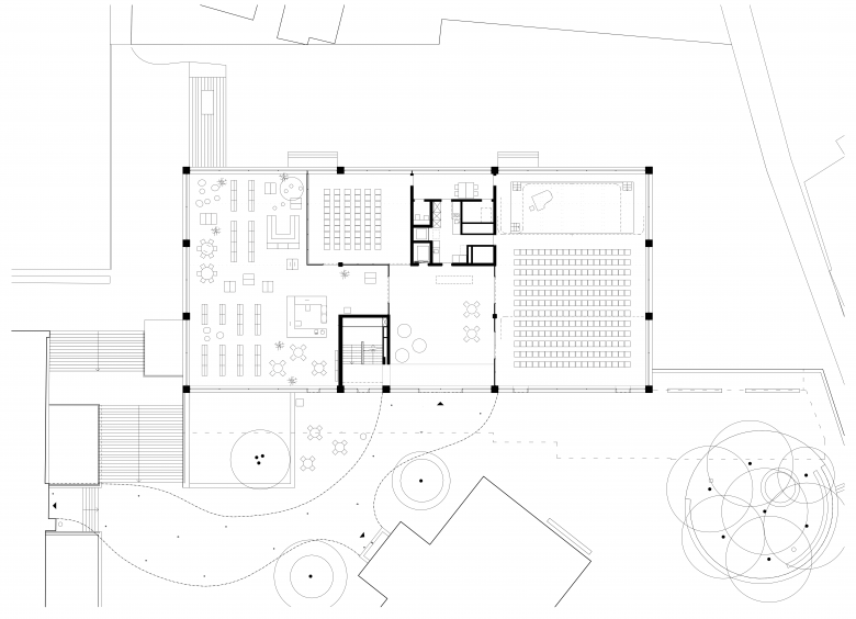
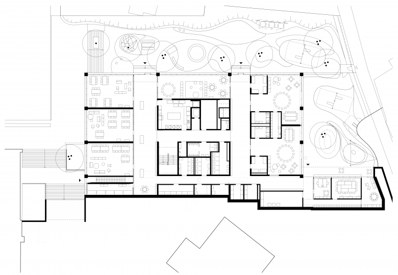
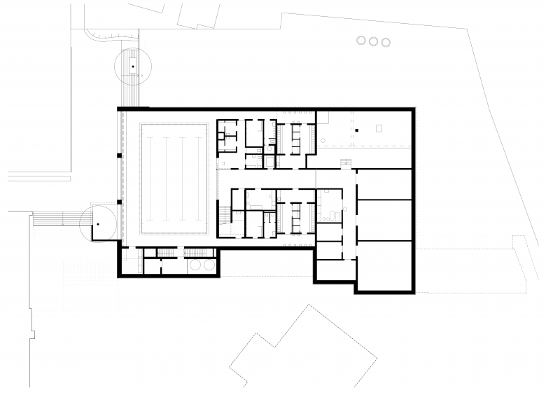
- Neuformulierung des Dorfzentrums und Neubau als Erweiterung der bestehenden Anlage mit zwei Primarschulhäusern.
- Programm
- Dorf- und Pausenplatz. Aula, Saal, Bibliothek/Mediathek, 5 Klassenzimmer, Gruppenräume, Schulverwaltung, Hort, Krippe, Schulschwimmanlage. Minergiestandard.
相关项目
杂志
-
每周建筑
The Three-Body Problem: Trapped in a Wave Sandwich
Eduard Kögel, Scenic Architecture Office | 13.04.2026 -
-
















