Easy Busy - Coworking Space
Bernauer Straße 49, Berlin, 德国
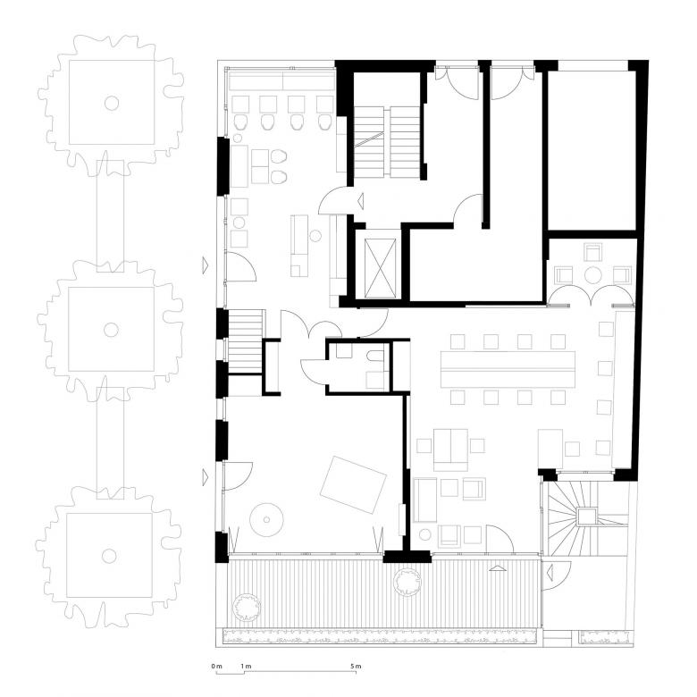
Die Räume von Easy Busy befinden sich im Erdgeschoß eines Wohnhauses in Berlin-Mitte, direkt am historischen „Mauerweg“. Die existierenden Gewerberäume wurden zu einem Coworking Space umgestaltet, der neben Arbeitsplätzen auch Räume für Kinder und Familien bietet. Der Bestand ist nun durch einen zentralen Riegel aus Garderobe und Sanitäranlage in drei Funktionsbereiche unterteilt.
Die Besucher finden im Eingangsbereich ein offenes Café das zum Netzwerken einlädt. An dem Tresen, der mittels Rollen verschiebbar ist, wird man mit Informationen wie auch mit Getränken versorgt. Eine Treppe führt ins Untergeschoss, wo sich unter anderem die Sanitärräume und eine kleine Küche befinden.
Der Kinderraum ist neben der Kinderbetreuung für Kurse und Veranstaltungen gedacht. Eine große Doppelflügel-Schallschutztür verbindet den Gemeinschaftsraum mit dem Kinderraum. Der Zwischenraum wird als Garderobe und Rückzugsraum für stillende Mütter genutzt.
Im Arbeitsraum mit mehreren Bereichen gibt es einen durch eine Glastrennwand zugänglichen Besprechungsraum. Der Raum wird durch mehrere gut ausgestattete Arbeitsbereiche aufgelockert und erhält so jeweils unterschiedliche Qualitäten.
Um sowohl ein ruhiges Arbeiten dicht neben dem Kinderraum als auch eine gute Sprachverständlichkeit in beiden Räumen zu ermöglichen, wurde zusammen mit dem Büro »Studio Singer« ein akustisches Konzept entwickelt. Dazu wurden die beiden Räumen schalltechnisch entkoppelt und lamellierte Holz-Absorber an die Decke oder an die Wände montiert, die die Raumakustik verbessern.
Die Möblierung – hauptsächlich weiß lasiertes Holz – wurde möglichst flexibel gestaltet, um den verschiedenen Nutzungen gerecht zu werden. Das fröhliche Farbspektrum der Einbauten und Wände orientiert sich in allen Räumen an dem Logo von Easy Busy. Die Farben verbinden sich mit dem Bildmotiv eines „Hauses“, das in den Räumen wiederholt auftaucht.
- 年份
- 2016
- 项目状态
- 已建造
- 客户
- Easybusy GmbH
- 团队
- Nataliya Sukhova, Alexandra Kopka
















