Erweiterung Rathaus Langenhagen
Marktplatz 1, Langenhagen, 德国
„Neue Mitte für die Stadt“
Die architektonische Qualität des Achtzigerjahre-Baus von Dieter Oesterlen wird erhalten, saniert und zu einem neuen Ganzen weitergebaut: ein zeitgemäßes Rathaus und identitätsstiftender Ort für die StadtbürgerInnen.
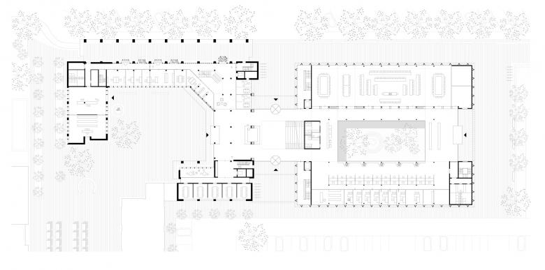
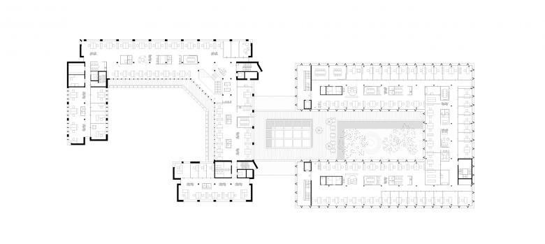
Das großzügige, lichtdurchflutete Foyer im Zubau ist die neue Mitte des Ensembles – wie ein Stadtplatz mit Wegkreuzungen, der Außen- und Innenraum, Alt und Neu demokratisch und fließend miteinander verzahnt. Zwei Körper werden zu einem Organismus. Die C-Form des Bestands dockt sich über eine Passage mit Lichthof an die U-Form des Zubaus an.
Eine Stadt in der Stadt. Fließende Raumgrenzen, vertikal und horizontal orchestriert – Blickachsen, Höfe, Räume, Wege, Nischen. Der zentrale Ratsaal verzichtet auf autoritäre Gesten. Durch seine Zweigeschossigkeit und dezente Interventionen wie die Holzlamellen und der Lampenhimmel gibt er sich bürgernah und repräsentativ zugleich. Hinter der klar strukturierten Fassade ist maximale Flexibilität möglich: offene Bürolandschaften sowie abgeschlossene Einheiten.
Die plastische Fassade wirkt mit ihren vertikalen, perforierten Dreiecksstützen und liegenden Balken ruhig und elegant. Sie gibt sich dennoch kommunikativ und transparent zur Stadt. Eingefärbte Betonfertigteilen interpretieren die regional typische Klinkerfassade des Bestands neu. Der Klinkerbelag im Foyer unterstreicht den öffentlichen Platzcharakter und holt die Stadt in den Innenraum. Die Grundrisse können individuell angepasst werden: Großraumbüros, Desk Sharing oder das klassische Arbeitszimmer, je nach Bedarf und Pandemielage. Ein einheitlicher, gediegener Farb- und Materialkanon im Alt- und Neubau schafft eine gediegene und zugleich einladende Atmosphäre.
- 年份
- 2022
- 项目状态
- 正在施工
- 客户
- Stadt Langenhagen
- 团队
- Wemmer Philipp, Aichberger Anna, Bammer Nike, Dimitrova Blagovesta, Melis Bruno, Stoklasek Rostislav, Toth Katalin, Rübenacker Christian, Dietz Maximilian, Zita Leutgeb
- Visualisierungen
- Expressiv
- Modellbau
- Modellbauwerkstatt Gerhard Stocker
- Architektur
- H&P Bauingenieure
- Tragwerksplanung
- Eisfeld Ingenieure
- Brandschutz
- Hamacher Brandschutz
- Bauphysik
- energydesign Braunschweig
- Elektro
- VA-Ingenieure
- Landschaft
- Spalink-Sievers Landschaftsarchitektur
- Lichtplanung
- Ulrike Brandi Licht














