Gewerbehaus Atrium Volketswil
Volketswil, 瑞士
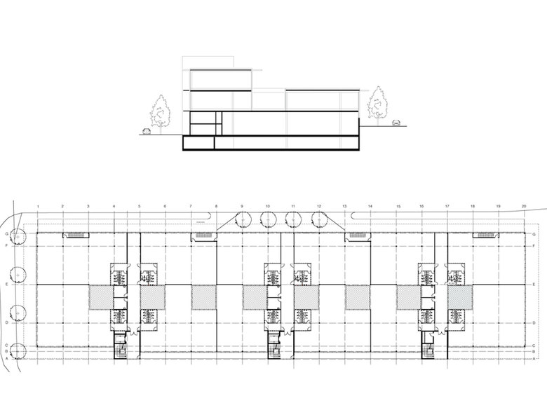
Das moderne Gewerbehaus beim Einkaufszentrum Volkiland ist als Dienstleistungszentrum mit ca. 4'500 m2 Verkaufsfläche sowie 5'500 m2 Bürozonen konzipiert. Das Untergeschoss,welches als massiver Sockel in Ortbeton ausgeführt wird, ist eine schwimmende Plattform aus welchem drei brachiale, in schwarzem Beton aufstrebende Treppentürme wachsen. Diese fungieren als Ankerpunkte für das leichte, transparente Hauptvolumen.
Leichtigkeit und Eleganz, in Verbindung mit den massiven und grob behauenen Vertikalerschliessungen bilden eine Verbindung zwischen Himmel und Erde. Die Leichtigkeit des Seins in Harmonie zum Standhaften, ist die Aussage des Baukörpers. Die klaren und schnörkellosen Vordachzonen gliedern die Horizontale und die Geschossigkeit.
- 年份
- 2003
- 项目状态
- 已建造









