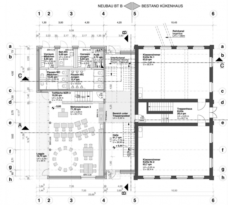
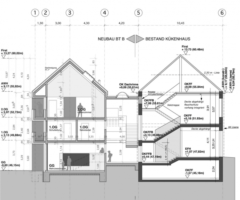
Grundschule Neusserstraße Köln

Köln, 德国

Erweiterung und Sanierung eines historischen Schulhauses von 1874. Neugestaltung der Freianlagen und Spielflächen.

建筑师
Roland Dorn
年份
2016
项目状态
已建造

相关项目 

  • Moos
    playze
  • Reiters Reserve Premium Suiten
    BEHF Architects
  • Erweiterung und Instandsetzung Hallenbad Altstetten
    MIYO Visualisierung
  • Neubau von fünf Einfamilienhäusern
    Bäumlin+John AG
  • The Forge in der 105 Sumner Street in London
    Kiefer Klimatechnik GmbH

杂志 

以下出品方的其他项目 Roland Dorn 

Die Bastei Köln
Köln, 德国
Gartenhaus Förderschule Velbert
Velbert, 德国
Grundschule Neusserstraße Köln
Köln, 德国
Parkdeck – Technologiepark Paderborn
Paderborn, 德国
Büro- und Ausstellungsgebäude Paderborn
Paderborn, 德国