Haus 14 St. Vincenzstift
Vincenzstraße 60, Rüdesheim | Aulhausen, 德国
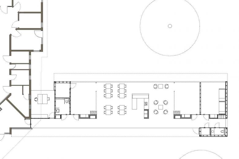
'Beschützend' überspannt ein langgezogenes Dach den offenen Grundriss der Fördereinrichtung zur aktivierenden Tagespflege für die Betreuung von Erwachsenen mit geistigen und teilweise körperlichen Behinderungen als Erweiterung des bestehenden L-förmigen Wohnhauses. Pavillonartig fügt sich der Anbau in den reizvollen Landschaftsraum ein. Das Gebäude lebt von seiner Transparenz zwischen Innen und Außen, Durchblicken und Ausblicken in die Landschaft. Ein reduziertes Material- und Farbkonzept prägt die behagliche Atmosphäre im Inneren.
Zeitraum
2009 - 2013
- 年份
- 2013
- 项目状态
- 已建造
- 客户
- St. Vincenzstift gGmbH
- Aufgabe
- Tagesbetreuung für behinderte Menschen, Anbau Haus 14











