Hirschfeld BF III - Naturnah wohnen

Gerasdorferstraße, Wien, 奥地利
Esplanade
照片 © EMILBLAU/Martin Geyer

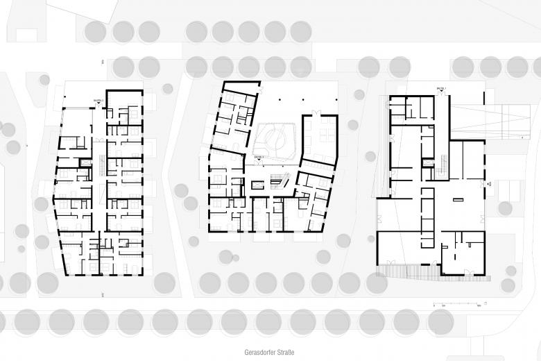
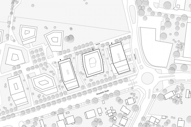
Der Masterplan - entwickelt von unseren Kolleg:innen „Shibukawa Eder Architects“ - bildet den übergeordneten Rahmen für das Gebiet Hirschfeld. Basierend auf der Flächenwidmung unterteilt sich das Grundstück an der Gerasdorfer Straße in vier Baufelder. Diese wiederum sind klar in zwei Gebiete mit unterschiedlichen Anforderungen zoniert - die lautere südliche Zone an der stark befahrenen Straße und die ruhigere nördliche Zone, angrenzend an das Waldgebiet entlang der Sowinetzgasse. Unser Baufeld findet sich an der Gerasdorferstraße und umfasst 2 Typologien, die im Masterplan entwickelt wurden – 2 Terrassenhäuser, die sich zur Gerasdorferstraße hin abtreppen, um auf die gegenüberliegende Bebauung zu reagieren und ein Punkthaus mit innenliegendem Atrium.

Die Baukörper werden über eine zentrale, autofreie Esplanade erschlossen und treppen sich zur Gerasdorfer Straße ab, wodurch sich großzügige Terrassen bilden, welche sowohl größeren und kleineren, smart und nicht-smart Wohnungen zugeordnet sind. Im Norden grenzt das Baufeld an den bauplatzübergreifenden Jugendspielplatz. Westlich schließt das Baufeld mit Bauteil 3 und darin befindlichem Gemeinschaftsraum direkt an den zentralen Kirschhain des Areals und leistet so einen wesentlichen Beitrag zur Belebung des Areals.

Wohnungen, Gemeinschaftsflächen und zugeordnete Freiflächen gewährleisten eine belebte Erdgeschoßzone. In den Terrassenhäusern (Bauteil 1 und Bauteil 3) führen kaskadierende Treppen durch das großzügig belichtete Treppenhaus nach oben. Lufträume ermöglichen Blickbezüge und visuelle Verbindungen. Das Atriumhaus (Bauteil 2) wird über das offene, begrünte Atrium erschlossen. Der Baukörper ermöglicht darüber hinaus durchgesteckte und querlüftbare Wohnungen. Die Begrünung im Erdgeschoß sorgt dabei für ein angenehmes Mikroklima.

In beiden Bautypen wurde die Erschließung hinsichtlich der Vermeidung reiner Nord-Wohnungen optimiert. Das Erdgeschoss bildet die Drehscheibe des sozialen Zusammenlebens und verwebt Architektur und Außenraum. Neben den Wohnungen und deren notwendigen Wohnfolgenutzungen (Müllraum, Kinderwagen- und Fahrradraum) werden im Erdgeschoss ein Gemeinschaftsraum und eine Fahrradwerkstatt angeboten, welche sich zur Esplanade hin orientieren. Darüber hinaus ist in Bauteil 1 ein Kindergarten untergebracht, welcher nicht nur einen Mehrwert für die Bewohner:innen, sondern auch für das gesamte Areal und dessen Nachbar:innen darstellt. Das begrünte Atrium in Bauteil 2 ladet darüber hinaus als Begegnungszone zum Verweilen und Kennenlernen ein. Die erweiterte Laubengangfläche im 1.OG bietet zusätzlichen Raum zur Interaktion und Kommunikation der Bewohner:innen. Zusätzlich holt der Gemeinschaftshof in der Mitte des Atriums nicht nur den angrenzenden Grünraum in die halböffentliche Zone, sondern stellt mit seiner Bepflanzung einen wichtigen identitätsstiftenden Mehrwert für die Bewohner:innen dar.

Atrium
照片 © EMILBLAU/Martin Geyer
Garten
照片 © EMILBLAU/Martin Geyer
Lageplan
图纸 © PLOV ARCHITEKTEN ZT GmbH
Erdgeschoss
图纸 © PLOV ARCHITEKTEN ZT GmbH
2. Obergeschoss
图纸 © PLOV ARCHITEKTEN ZT GmbH
Längsschnitt
图纸 © PLOV ARCHITEKTEN ZT GmbH
建筑师
PLOV ARCHITEKTEN ZT GMBH.
年份
2024
项目状态
已建造
客户
ÖSW – Österreichisches Siedlungswerk
团队
Richard Baltl, Martin Geyer, Ðurđica Srdanović Glavina, Kerstin Loder, Davor Podbregar, Manfred Thallner
Tragwerksplanung
petz zt-gmbh
Brandschutzplanung
Röhrer Bauphysik
Landschaftsarchitektur
Dipl. Ing. Karin Standler

相关项目 

  • Gymnasium Schulstraße
    Kronaus Mitterer Architekten
  • GROHE Water Experience Center
    D’art Design Gruppe GmbH
  • Limmatquai 4
    Kästli Storen
  • Volksschule Erlaaer Schleife
    Kronaus Mitterer Architekten
  • Ortsdurchfahrt Domat/Ems
    Luminum GmbH

杂志 

以下出品方的其他项目 PLOV ARCHITEKTEN ZT GMBH. 

WHA Mödling Neusiedlerviertel
Mödling, 奥地利
Raum für die IG-Architektur
Wien, 奥地利
Generationenwohnen FUX+
Ybbsitz, 奥地利
Landwirtschaftliche Fachschule Winklhof
Oberalm, 奥地利
Sanierung und Erweiterung des B[R]G St. Pölten
St. Pölten, 奥地利