融新于旧,与时并进 - 济南蔚来中心
No.3 West Heihuquan Road, Lixia District, 济南, 中国
随着近期欧洲发布会的成功举办,NIO蔚来成为国际高端新能源汽车市场一颗冉冉升起的新星。在国内,该品牌已经是市场的领军者,其倡导的用户社区概念及衍生出的一系列具有前卫设计感的蔚来中心为大众所熟知。为提升用户体验,品牌与设计师共同探寻项目所在城市的人文基因并将其融入方案中,造就独特的场景设计。在合作完成南昌蔚来中心后,芝作室再次受邀改造济南一座双层带庭院的独栋建筑。
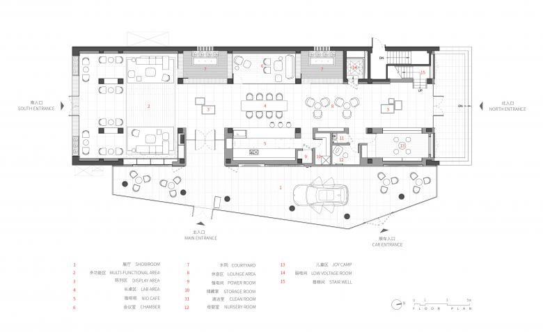
建筑位于黑虎泉畔的宽厚里商业街,始建于2015年,是一个包含3个坡屋顶和2个内庭院的展览空间。该场地曾被改作商铺,内庭院被拆除以扩充室内面积。芝作室在本次改造中还原建筑秩序,并引入一个开放式空间,“新”的现代布局与“旧”砖混建筑并置,营造出一种和谐的蜕变。
整栋建筑在视觉上呈现出现代与传统建筑语言的对比, 也正好将展厅和车主俱乐部分成两个体块。朝向主街道的汽车展厅,通高的玻璃幕墙将充满高科技感的空间完整地展现给往来行人。铝制屋檐以平缓坡度层层挑出,用现代材料与样式重新诠释传统的斗拱结构。由展厅向内行进,俱乐部入口以一处静谧的庭院景观来迎接每一位车主。庭院以旧砖修复,地面青瓦立铺出传统的水波样式,栽竹养蕨,居中设有简约的青石板涌泉,汇聚自然风韵,同时呼应“泉城”独特的城市景观。
车主俱乐部位于3个坡屋顶下,原有混凝土梁柱结构界定出南北轴向的开放用户空间,提供了清晰的穿堂视野。设计团队呼应原建筑坡屋顶用木纹铝板打造出一系列坡顶天花,与厚重的混凝土结构形成轻与重的对比。铝板相互独立,间隙内藏有轨道射灯和空调风口,顶点处分开成“人”字形,配合新增的条形天窗,将阳光引入室内。
车主俱乐部居中位置是NIO Café,南边是多功能厅,为大部分人聚集的场所,北边是儿童游乐区和通往二层的楼梯。木制柜台、展台、楼梯间如同嵌入建筑内的独立“积木”,与木纹天花系统一起为这个极简留白式画廊带来温暖与纹理。一系列不同高低组合的落地展台亦采用轻重对比的理念进行设计,展台台面仿如一个个漂浮的木托盘,与透明的亚克力底座通过镶嵌的方式结合在一起,不仅视觉轻盈,也用现代的方式呼应了传统榫卯的细节。
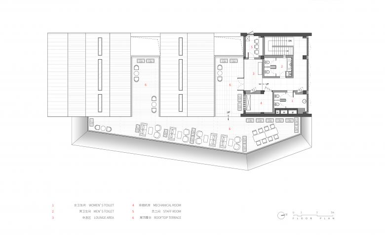
沿楼梯拾级而上,二层原有平屋顶区域经加固后变成户外露台。露台扶手用白色渐变夹膜玻璃制成,不仅有助于保护访客隐私,还能柔和地界定内外边缘,为建筑立面增添雾气般的朦胧诗意。登高远眺,泉城高楼林立的天际线尽收眼底,同时还能触摸到传统建筑上的青砖黛瓦。每位到访济南蔚来中心的新能源汽车用户仿佛进行着一段奇妙的时间之旅,共同畅想未来。
- 建筑师
- LUKSTUDIO芝作室
- 年份
- 2022
- 项目状态
- 已建造
- 客户
- NIO
- 团队
- Christina Luk, Yicheng Zhang, Haixin Wang, Vivi Du, Rebecca Tan, Coca Gao
- 灯光顾问
- 杭州束芒照明设计有限公司
- 图纸深化
- 弘晟建筑装饰设计工程(上海)有限公司

































