Kunst im Herzen
Schaffhausen, 瑞士
- 年份
- 2013
- 项目状态
- 已建造
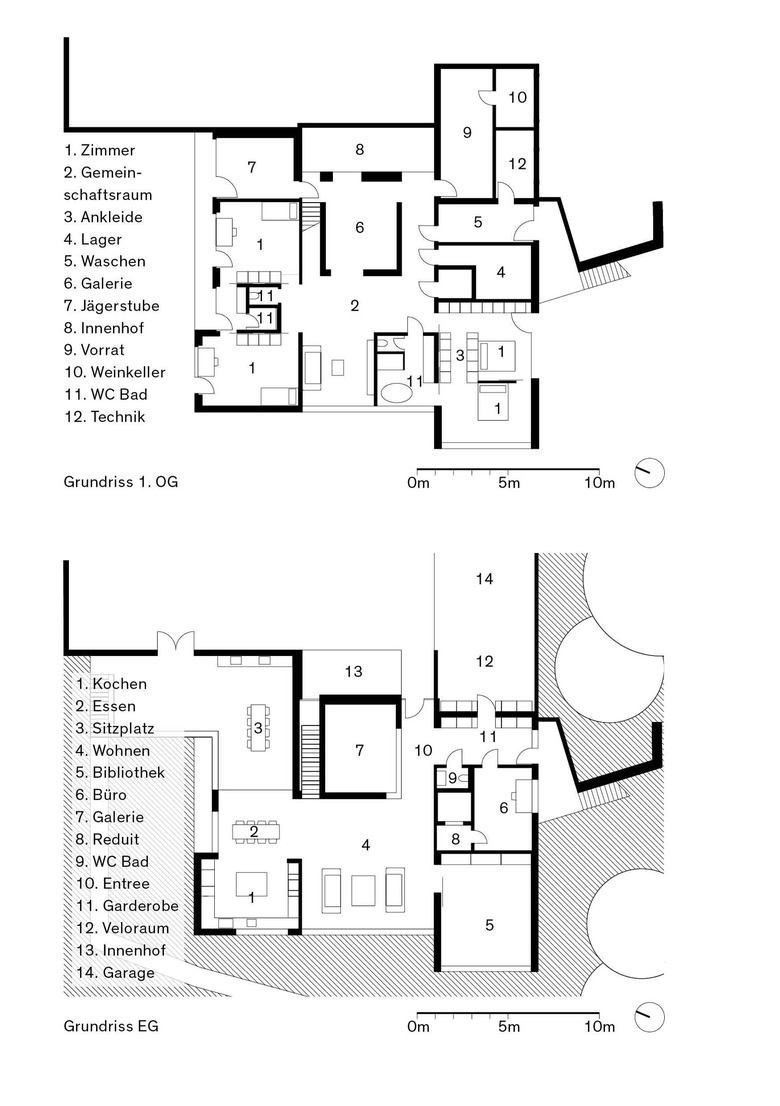
- Neubau
- Villa in historischer Parkanlage
- Auftrag
- Direktauftrag
- Anzahl Zimmer
- 9.5
- Wohnfläche
- 432 m2
- Grundstücksfläche
- 3717 m2
- Kubatur SIA 116
- 2836 m3
相关项目
杂志
-
-
-
每周建筑
The Three-Body Problem: Trapped in a Wave Sandwich
Eduard Kögel, Scenic Architecture Office | 13.04.2026 -














