叠院儿
Qianmen, 中国
叠院儿
“叠院儿”隐藏于北京前门附近的一片传统商业街区之中,占地面积约500平米。原建筑是一座颇具民国特征的四合院商业用房。与民宅相比,这里的房屋较为高大。南侧沿街是一排拱形的门窗,北侧的房屋则建有两层。在本次改造之前,房屋结构均被整体翻建过,院内并没有门窗和墙面,裸露着粗犷的木结构梁柱。据说这里在民国时期曾是青楼,建国后又转变为面包坊,翻建之后就空置下来。建筑未来的使用被设定为兼有公共活动与居住的混合业态空间。因此,本次改造在提升建筑质量以及基础设施的同时,重在创造基于胡同环境背景之下的特定场景体验,以吸引日益多元消费需求的城市人群。
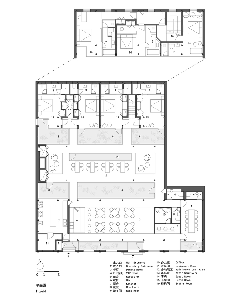
传统建筑的一个显著特点就是呈递进式的院落。在一座三进四合院当中,房屋的使用功能跟随每一进院而相应的产生变化,由外向内私密性逐步提高,人们由此产生 “庭院深深”的印象。设计受到传统空间中“多重叠合院落”的启发,将原本的内合院改变为“三进院”,以此适应从公共到私密逐级过渡的功能使用模式,并利用院落的逐层过渡在喧闹的胡同街区之中营造出宁静、自然的诗意场景。“叠院儿”重新梳理了新与旧、内与外、人工与自然的关系。首先局部拆除了南侧房屋屋顶,在室内空间与街道之间退让出第一层庭院,然后在南北房屋之间新加入一座坡顶建筑,并以两层平行的庭院将新与旧相互分隔。三层庭院让所有的室内空间都能有竹林与阳光相伴。空间之间彼此分离又相互透叠,带有雾化图案的玻璃墙面犹如叠嶂一般,进一步强化了半透明感的空间效果,由此实现了由外至内不同空间场景和生活情境的叠合并置。
房屋的使用模式跟随着三层庭院,自然产生由开放向私密的过渡关系。南房布置了接待、餐厅、酒吧、厨房、办公、库房等,是一个举办公共聚会活动的地方。原建筑木质梁柱结构被尽量保留下来,由新置入的两个木盒子服务单元来划分出不同尺度的使用空间。透过第一层庭院,原建筑拱形门窗洞和朱漆大门变成了“影壁墙”,在竹林的映衬下勾勒出真实多彩的胡同生活剪影。中间的房屋被处理成一个弹性使用的多功能空间,既可以与前面餐厅合并共同使用,也可以独立作为展厅,或者与后面客房区合并作为休息区。这个新建的建筑体在形式上尽量考虑与两侧坡顶旧建筑在尺度、采光、距离上的协调关系。内部空间围绕一个线性的水景庭院展开,主要使用透明、半透明、反射性的材料和家具以弱化一个实体空间的物质存在感,营造有别于旧建筑的轻、透、飘的氛围,既映射又消隐于竹林庭院之中。北侧房屋是最为私密的客房区域。利用原建筑结构条件,一层空间被划分为四个房间。客房休息区与卫浴区利用材料的变化彼此分开,每间客房都拥有独立的竹林庭院,内外之间相互层叠掩映。二层则分为三间大小各异的客房。透过落地玻璃幕墙,视线掠过层叠的灰瓦屋顶和绿树蓝天,正是身居此处的最佳风景。所有客房均配置了人脸识别和智能控制系统,客人可以通过线上平台完成预约并扫码入住,让居住体验变得更加轻松和便捷。
项目名称:叠院儿
项目位置:前门,北京
建筑面积: 约530平米
完工日期:2018年2月
主要材料:镜面不锈钢、印刷玻璃膜、透光砖、橡木板
设计公司:建筑营设计工作室(www.archstudio.cn)
主创建筑师:韩文强
设计团队:黄涛
结构顾问:张富华
水电设计:郑宝伟
灯光顾问:董天华
家具顾问:宋国超
摄影师:CreatAR Images 骆俊才/ 金伟琦
撰文:韩文强































































