LI City Study
No.375, Yingbin Avenue, Tianmu Lake Town, Liyang City, Jiangsu Province, Liyang City, 中国
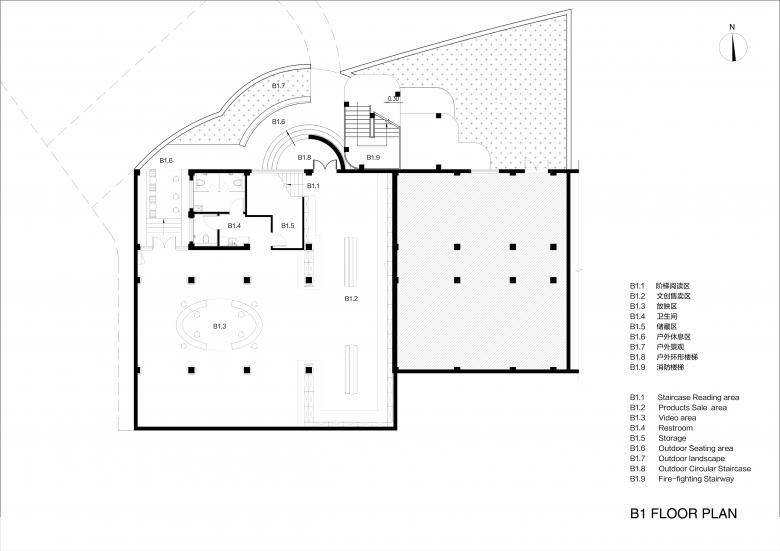
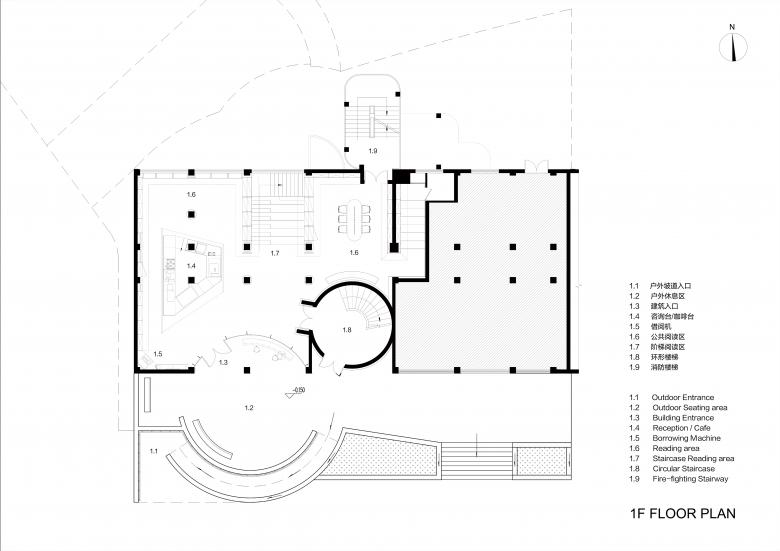
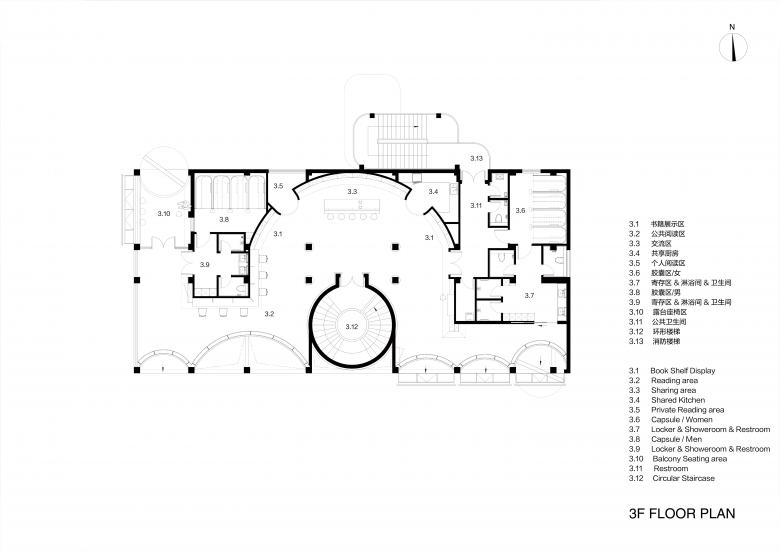
LI City Study is located in the Tianmu Lake Resort in Liyang City. As a government sponsored public welfare project, it realizes the convenience of shared urban cultural spaces and provides a public space for citizens and tourists to read books for free 24 hours a day. Before the renovation, the building was an office. The government proposed new social functions for it to adapt to public needs while reflecting the humanistic care for the public.























