MA House
Hushan Street, Quzhou, 中国
If the house is an object, it needs to be used for more than a century. If the house is a work of art, it is the closest to everyday life.
The independent house is the origin of the architect, and it is also a problem worth exploring in a lifetime. Real residential creation is different from large-scale industrial construction. They maintain introspection and resistance. They reject the label of commercialization. They are discussing the poetics of residence. The poetics of residence is not only about comfort, the meaning and surprise of space are the core topics of residence design.
The "Boundary House" completed in 2016 explores the translation of the abstract boundary space in the garden into contemporary independent houses. From now on, I hope that each of my works can explore a core vocabulary of architecture.
Growing in the rubble
The land for more than 30 self-built houses planned in Hejiashan, Quzhou, Zhejiang at that time were all determined by lottery. Although the front area of "MA House" near the road is open, the site orientation is not good, and the large north garden has no sunlight. . The surrounding houses are undersigned and are typical rural self-built houses in the past 30 to 40 years, with dense wires and weeds growing among them.
"MA House" was grown in such a rough place. We made narrow wood formwork concrete for the building skin, hoping to continue the hand-made feeling, and then a layer of white latex paint was applied to most of the exterior walls to weaken it. A sense of handwork.
The interior of the building fully retains the plant impressions and the texture of plain concrete. The outer wall has not been renovated at all, but the old wall from the time the old house was demolished is still retained. It is not beautiful, but has the atmosphere of the past.
This building wants to respond to the broken context with this conflicting logic.
Segmentation-Through
Time and space are both considered to be continuous and inseparable, but Chinese characters were very interesting when they were constructed at first. They both end with "MA (Japanese)", which seems to imply a certain structure inside.
As "MA House", MA is firstly a limitation of physical structure. Daily trivial feelings always prompt us to abandon the concept of life as a whole and instead focus on hidden information such as air circulation, light and shadow changes, subtext, etc. .
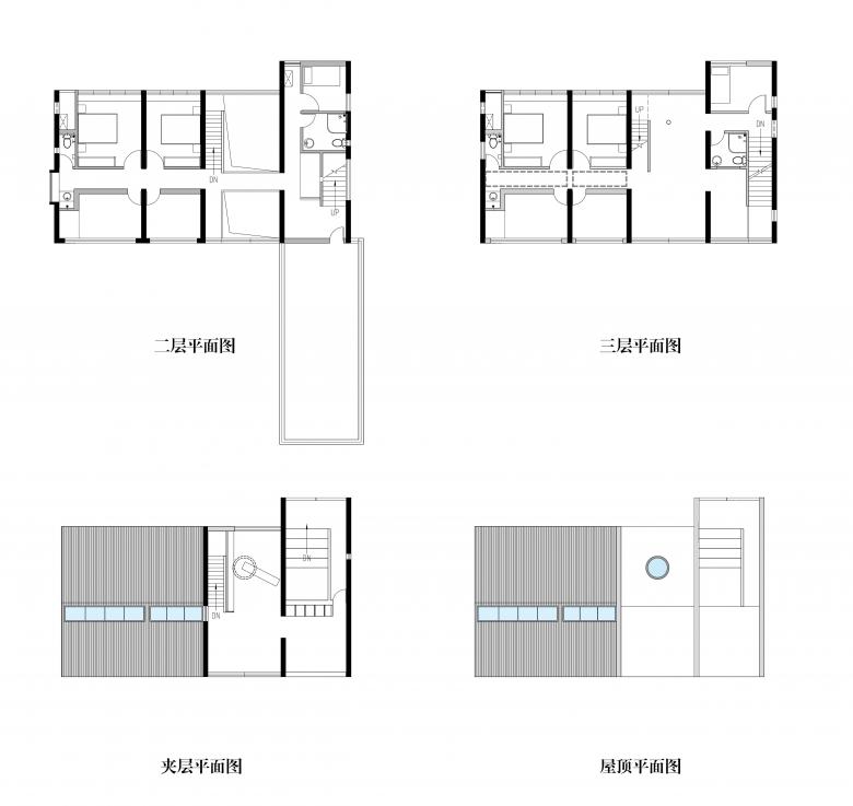
Family life is defined by the slight difference of four bays (MA) from 4.4m-3m-4m-3.3m. When you walk through different MAs, you can feel the existence of the wall as a vertical division structure only for a short moment. The relationship between the five walls and the people is clear but detached.
The building is close to the southernmost side of the entire site. The south garden has a ray of sunlight, and the north garden has a large area of shadows. Once the walls are arranged vertically, the space is connected from north to south. You can feel the wind and light in the room and see the splendor and depth of the gardens on both sides.
Room- Bay -Ma
In the design of “MA House”, I wanted to express an atmosphere different from the traditional partitioned space. From "room" to "bay" is the first step in space operation. This means that the space is enclosed from the four walls to the north-south connection. The five reinforced concrete shear walls in the structure become the main force element. In contrast, most of the remaining walls are brick walls. The different bays assume different functions. They are side by side with each other and are in peace, until a corridor appears in the middle that runs through the four bays, and this sense of alienation is broken.
From "bay" to "between" is the second step of space operations. Ma(間) this important Japanese aesthetic consciousness, in Kurokawa Masayo's view, is the beginning of the removal of the overall concept. In architecture, Ken(間) refers to the length measurement unit between columns.
The two interpretations of the same concept just form the meaning of "Ma" in this work: life requires standards of scale, and at the same time it needs to be seen through. What "Ma House" wants to express is the life between division and penetration.


































