MPREIS Jenbach / Cantina
Schießstandstrasse 1, Jenbach, 奥地利
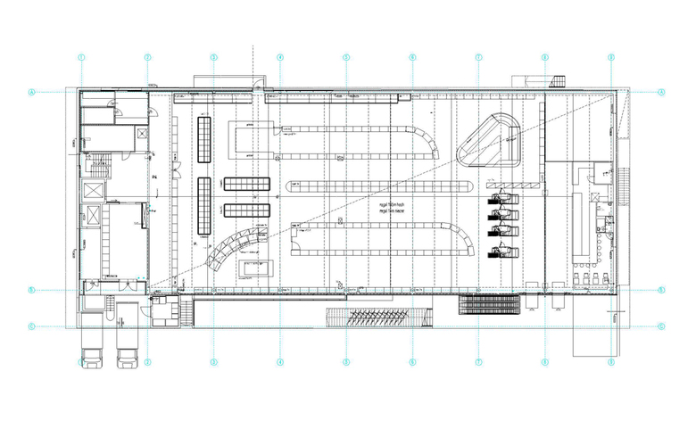
An der Straßenkreuzung ins Gelände eingeschnitten, wurde aus dem Programm ein neuer Typus des Lebensmittelmarktes entwickelt, der zwei Bauherren dient: Ähnlich wie der historische Fischmarkt in Venedig wurde für den MPREIS eine Art gedeckter Marktplatz unter einem aufgeständerten großen Volumen kreiert. In diesem befinden sich die Cantina für 300 Personen, Casino, Küche und Werksarzt sowie eine großzügige, gedeckte Südterrasse für die Jenbacher Werke. Der Verkaufsraum selbst, wurde trotz der großen Nutzlasten aus dem Obergeschoß 22 m stützenfrei überspannt. Vorgespannte TT Deckenelemente sind an den Auflager-Enden so ausgeklinkt, dass ein „schwebender“ Eindruck entsteht. Versetzt angeordnete Leuchtbalken verwandeln den oberen Raumabschluss in eine Lichtdecke mit einem gewissen Moiré - Effekt, der die Leichtigkeit unterstützt.Die Wände im Cantina - Geschoß bestehen zur Gänze aus vorgefertigten Holzelementen. Ebenso das Dach, dessen primäre Tragkonstruktion, aus unterspannten Stahlträgern besteht. Alle Entsorgungsleitungen sind in die Säulen im 7,5 x 22 m Raster eingelegt. Die Außenhaut aus anthrazit färbigem Eternit, bildet den farblichen Rahmen für die rötlichen Lärchen 3schichtplatten. Terrasse und Treppe wurden von den Dachträgern zur Verringerung des Feldmomentes abgehängt.
- 年份
- 2001
- 项目状态
- 已建造













