Neubau Containerhaus in Münchenwiler
Bahnhofstrasse, Münchenwiler, 瑞士
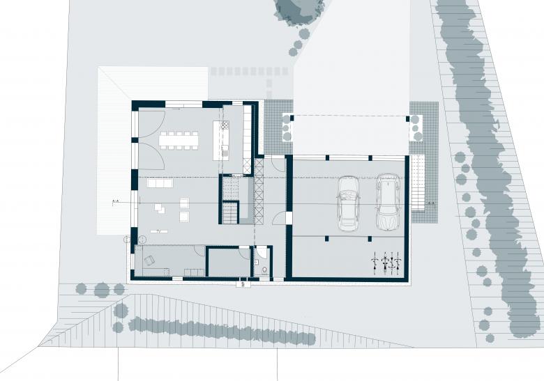
Aufgabe: Neubau eines Einfamilienhauses mit Einliegerwohnung und Garage in Münchenwiler
Planung: Der Schiffscontainer als Massstab und Grundeinheit für ein Zweigenerationenhaus.
Heizen: Wärmepumpe Luft-Luft
Upcycling: Acht Schiffscontainer bilden Raum und Struktur des Hauses
Dach: Holzbau mit Ziegeleindeckung
- 年份
- 2019
- 项目状态
- 已建造










