world-architects.com
Profiles of Selected Architects
简介
项目
职位
活动
杂志
主题
网络
登录
注册
中文
Català
Deutsch
English
Español
Français
Italiano
Nederlands
Português
中文
日本語
Català
Deutsch
English
Español
Français
Italiano
Nederlands
Português
中文
日本語
World-Architects
项目
Neubau Wohnüberbauung Stationsstrasse
Embrach, 瑞士
Visualisierung Aussen
可视化 © Atelier Brunecky
Visualisierung Innen
可视化 © Atelier Brunecky
Detailgrundriss 3.5 Zimmer Wohnung
图纸 © Schneider Gmür Architekten
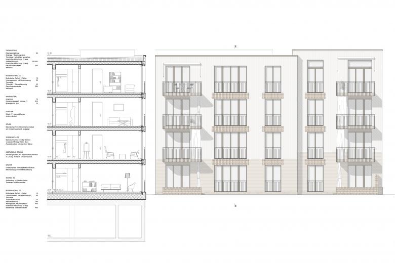
Detailschnitt Fassade
图纸 © Schneider Gmür Architekten
集合住宅 + 多体住宅
建筑师
Schneider Gmür Architekten
年份
2021
项目状态
设计
相关项目
Moos
playze
Reiters Reserve Premium Suiten
BEHF Architects
Erweiterung und Instandsetzung Hallenbad Altstetten
MIYO Visualisierung
Neubau von fünf Einfamilienhäusern
Bäumlin+John AG
The Forge in der 105 Sumner Street in London
Kiefer Klimatechnik GmbH
Bauleiter/in oder Hochbautechniker/in (m/w/d), 80–100%
schulzarchitektur gmbh
Projektarchitektin / Projektarchitekt ETH/FH 80%-100%
RUPRECHT ARCHITEKTEN
Wettbewerbsarchitekt/in 80-100%
RUPRECHT ARCHITEKTEN
更多
杂志
Headlines
Getty Center to Close Temporarily for 'Major Modernization Efforts'
John Hill
| 10.04.2026
Insight
Energy-Positive Construction
Elias Baumgarten
| 09.04.2026
Headlines
Kengo Kuma To Design New National Gallery Wing
John Hill
| 08.04.2026
Film
Architecture for People, Not for Architects
John Hill
| 08.04.2026
Found
2 x 2 = 4 Books from 2 Architects
John Hill
| 07.04.2026
以下出品方的其他项目 Schneider Gmür Architekten
Stiftung Vivala Weinfelden
Weinfelden, 瑞士
Haus für Demenz der Thurvita AG
Rossrüti, 瑞士
Erweiterung Stiftung Pigna
Kloten, 瑞士
Haus Meerpferd Schmiedgasse
St. Gallen, 瑞士
Instandsetzung und Umnutzung Suchtfachklinik Zürich
Zürich, 瑞士