Nouvelle école primaire
Route Principale 147, Sorens, 瑞士
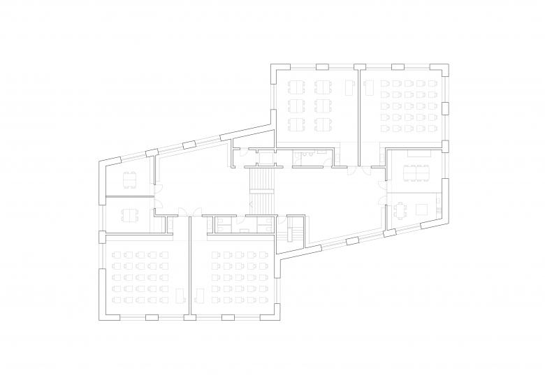
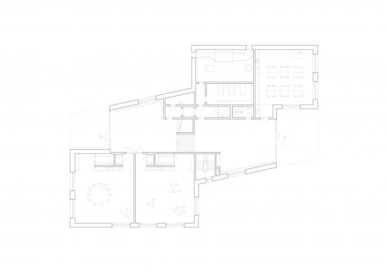
En lieu et place de l’ancienne école devenue trop petite et ne respectant plus les normes, le projet occupe désormais la même parcelle allongée et profite d’une magnifique vue sur les Préalpes fribourgeoises.
A l’image de la topographie en pente du village de Sorens, le projet vient s’insérer dans le terrain existant en imbriquant deux volumes distincts. Ce jeu volumétrique permet de bénéficier d’un espace de circulation central et propice à l’enseignement autour duquel les sept salles de classe viennent se positionner et bénéficier de deux orientations chacune.
La façade a été réalisée en sapin blanc de la région avec ajout d’un saturateur noir, non salissant qui garantit la pérennité de la façade. Les menuiseries intérieures en bois ont été dessinées sur mesure afin de répondre à chaque besoin précis.
- 年份
- 2018
- 项目状态
- 已建造

















