排子胡同38号

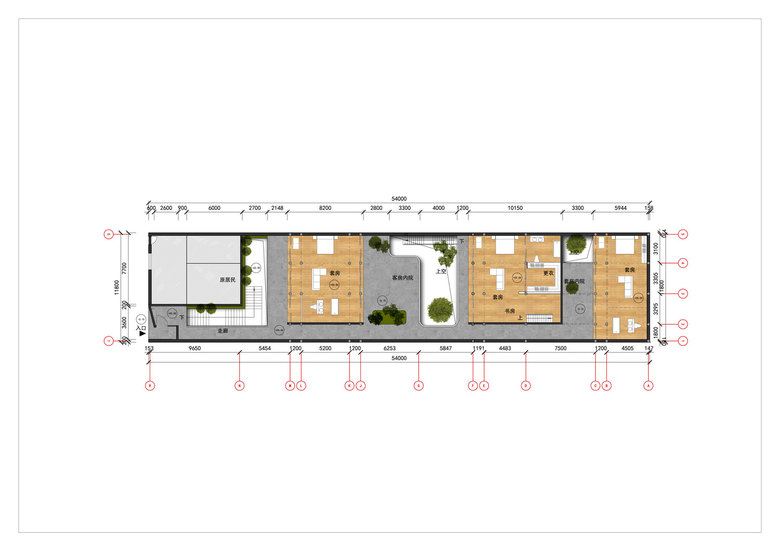
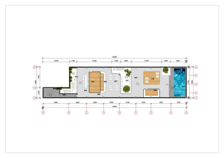
这是一个将北京胡同内三进四合院改造成设计型酒店的方案。这个四合院曾经是寺庙的一部分,后来也曾作为学校、工厂和青旅使用过。这些功能在不同的时间发生,都给这个四合院留下了痕迹。 为了保留这段历史,我们剥去了加建的厂房屋顶,但是留下它的屋面桁架部分。在此基础上,插入新的、现代化的、舒适的功能。地面以上保存了具有老北京历史风貌的四合院,地面以下是全新的公共空间。几个下沉庭院解决了地下通风采光的问题。在这个庭院中,人民可以直观地看到时间的剖面。

照片 © Interval Architects
照片 © Interval Architects
照片 © Interval Architects
照片 © Interval Architects
照片 © Interval Architects
照片 © Interval Architects
照片 © Interval Architects
照片 © Interval Architects
照片 © Interval Architects
照片 © Interval Architects
建筑师
空格建筑
项目状态
设计
团队
Oscar KO, Gu Yunduan

相关项目 

  • Moos
    playze
  • Reiters Reserve Premium Suiten
    BEHF Architects
  • Erweiterung und Instandsetzung Hallenbad Altstetten
    MIYO Visualisierung
  • Neubau von fünf Einfamilienhäusern
    Bäumlin+John AG
  • The Forge in der 105 Sumner Street in London
    Kiefer Klimatechnik GmbH

杂志 

以下出品方的其他项目 Interval Architects 

青普腾冲行馆
腾冲, 中国
面向田野的住宅
上海, 中国
水生植物科普馆
河北, 中国
毡房别墅
Zhangye, 中国
新场微更新